Маленькие дети обожают возиться в песке. Чтобы обеспечить им такую возможность, дома и на даче заботливые взрослые ставят песочницы. Конечно, есть в продаже готовые, но цена у них совсем не детская. Лучший выход — песочница, сделанная своими руками. При ее изготовлении вы уж точно постараетесь учесть все особенности и пристрастия вашего ребенка.
Из чего можно сделать песочницу
Самый популярный материал для строительства детской песочницы — древесина. Это могут быть обрезные доски, бревна небольшого диаметра, брус, блок-хаус. В основном из этого и мастерят. Чтобы работа шла быстрее, покупать можно шлифованные материалы. Они стоят дороже, но имеют гладкую поверхность. Если необходимо сэкономить, берите обычные материалы, потом вручную или при помощи шлифмашинки доведете все до идеального состояния.

Можно использовать фанеру (влагостойкую) или ОСБ (ОСП). Не все их любят, за наличие клея и вредные испарения (формальдегид). Но на воздухе эти выделения не страшны, а еще можно использовать материал с классом эмиссии E0 или E1. Он гарантирует безопасность — из такого материала делают детскую мебель. С фанерой и ОСБ работать удобно: вырезал необходимой формы детали, скрутил их вместе, обработал торцы и можно красить.
На даче можно использовать подручный материал. Например, пластиковые бутылки. Только чтобы они держались, их прикрепляют к доске: прибивают с определенным шагом крышки, в них вкручивают бутылки. Получив одну «боковину», берут кусок толстой проволоки, равный двойной длине боковины + 20 см, протыкают проволокой бутылки отступив около 5-7 см снизу, разворачивают проволоку вверх и протыкают в обратном направлении сверху. Концы скручивают, стараясь «хвосты» спрятать.

Такая скрутка получается только с одной стороны — с другой просто согнутая проволока. Когда будете ставить боковины, ставьте так, чтобы «хвосты» оказались закрыты бутылкой. Готовые боковины песочницы из бутылок устанавливают в неглубокий ров, присыпают доску и сужающийся низ бутылок грунтом, хорошо утрамбовывают. На дно можно кинуть лист фанеры, а сверху уже насыпать песок.
Второй по популярности «бросовый» материал для дачных поделок — автомобильные шины. Делают из них и песочницы. Необходимо с одной стороны срезать боковину старой покрышки. Получатся довольно высокие бортики. Далее есть два пути:
- можно дырку закрыть вырезанной по размеру фанерой и использовать так как есть;
- отрезать вторую боковину и получить только бортик.

Песочница из покрышек: как делать
В любом случае придется срезы обезопасить. В некоторых шинах корд (армирующее волокно) пластиковый, в некоторых — металлический. Пластиковый можно отшлифовать, а вот металлический придется как-то закрывать.
Для изготовления песочницы можно использовать напиленные на куски стволы поваленных деревьев. Из них получается очень интересная и вполне надежная ограда. Перед тем, как вкапывать, древесину нужно обработать — чтобы дольше служила. Есть современные пропитки с одновременным подкрашивающим эффектом. Удобно. Обработанные пеньки надо просушить, а пока они сохнуть выкопайте по периметру будущей песочницы ров. Его глубина не менее 20-25 см. Меньше делать не стоит — детвора будет по пенькам ходить-скакать, потому они должны держаться хорошо. В ров вставить торцом бревнышки, выровнять, засыпать промежутки грунтом и хорошо уплотнить.

Из бревен можно сделать и ограду для песочницы традиционного типа. На грунт положить основание: кусок линолеума, например, в котором сделать несколько дырок — для стока воды после дождя. На основание положить бревна, сделав из них прямоугольник/квадрат. Скрепить их можно длинными гвоздями, но надежнее шпильками — стальными стержнями с резьбой на обоих концах. Под них надо будет в месте соединения бревен наискосок просверлить отверстие. Диаметр — чуть больше диаметра шпильки. Края отверстия рассверлить — чтобы можно было утопить гайки с шайбами. В отверстие вставить стержень, с обоих концов надеть шайбы, затянуть все гайками.
Сверху можно сделать скамейки — одна-две доски и лавочки для малышей готовы. Они, конечно, редко на них сидят. Чаще выстраивают на них свои песчаные замки.

Как сделать игровую детскую площадку смотрите тут.
Как делать песочницу: пошаговая инструкция
Для начала разберем общие принципы изготовления песочниц любой конструкции. С некоторыми видоизменениями они повторяются каждый раз.
Шаг первый. Выбор места. Место нужно подобрать так, чтобы часть песочницы была в тени, часть — на солнце. Если такое невозможно, ставим на солнечное место, а над ней делаем навес. Обратите внимание чтобы рядом не было крупных деревьев или кустов. Они, конечно дают неплохую тень, но с них сыпятся листья, и песок придется часто просеивать.

Не ставьте песочницу на сильном солнцепеке, не должна она быть и в углу, где совсем нет движения воздуха. Но и на сквозняке ей тоже не место. Еще один немаловажный момент: если вы планируете выпускать малыша поиграть вод дворе самостоятельно, место для игр должно хорошо просматриваться из окна того помещения, где вы проводите большую часть времени.
Шаг второй. Разметка. Если песочница прямоугольная, используют колышки и натянутые между ними нитки. Вбили колышки, отмерив требуемые размеры (стандартный размер детской песочницы для детей от 2 до 5 лет — 1,7 м * 1,7 м). Между ними натянули шпагат, веревку, шнур. Проверили диагонали, Чтобы углы были прямые они должны быть равными.

Если песочница будет со скругленными углами или боковинами, прорисовать дугу можно при помощи песка, насыпанного в мешок. В углу мешка прорезают небольшую дырку и таким способом «рисуют» требуемую форму.

Шаг 3. Копаем котлован. Снимаем дерн, и относим в сторону, убираем немного грунта, вычищая по ходу дела корни, убирая камни. Глубина котлована — 20-30 см.

Посередине песочницы сделайте небольшой квадрат большей глубины: со стороной около 60 см и глубиной еще 30-40 см (общая глубина этой ямки будет 60-70 см). В яму насыпьте щебня. Это будет «система отвода воды». Если сформируете от краев к ней небольшой склон, песок будет сохнуть после дождей быстро.
Шаг 4. Укладываем основание.
На дно полученного котлована подсыпаем немного песка (5-6 см), выравнивая его хорошо. Теперь нужно положить основание. Самый лучший вариант — геотекстиль. Это нетканый материал, очень прочный на разрыв. Он не даст прорастать траве, не допустит смешения песка с землей. Если его заведете на края котлована, он еще и землю будет «держать» не давая ей затекать при дожде внутрь.

Если геотекстиль не нашли, постелить можно кусок фанеры или линолеума. Только в них нужно прорезать несколько дырок (диаметром 1,5-2 см) для стока воды.
Дальше уже могут быть отличия — зависит от выбранной модели и способа установки песочницы. Особенности их строительства рассмотрены ниже.
Песочница своими руками: пошаговые фотоотчеты
Какой бы простой не казалась конструкция, как доходит до воплощения, появляются вопросы. Чтобы их было меньше, публикуем несколько моделей самодельных песочниц с пошаговыми фото, запечатлевшими основные узлы.
Простая конструкция
Самое простое что можно сделать — сбить прямоугольник или квадрат из досок. Для песочницы нормальная сторона квадрата 1,7 м. Вот и нужны вам будут 4 или 8, 12 досок такой длины. Размеры делать больше, можно меньше — выбор за вами. Количество рядов досок зависит от их ширины и от того, насколько высокой вы хотите ее сделать.

Если, как описывали раньше, копали котлован 25 см, потом насыпали 5 см песка, получилось углубление 20 см. Если хотите, чтобы бортики выступали из земли на 10 см (для детей 2-х лет это удобно, для более старших можно от 20 см и выше), суммарная высота получается 30 см. Если доска шириной 10 см, потребуется 3 яруса (досок, соответственно 3 ряда * 4 шт = 12 шт).
Еще понадобится брусок сечением 40*40 мм. Его необходимо будет напилить на куски, равные высоте бортиков песочницы. В нашем случае это 30 см. Нужны будут 4 шт. Общая длина требуемого бруса — 1,2 м. Все пиломатериалы хорошо шлифуют, потом пропитывают защитными пропитками, иначе древесина быстро потеряет вид.
Берем две доски, складываем под углом 90°. В место стыка ставим брусок, обе доски прибиваем гвоздями или вкручиваем саморезы — по два на каждое крепление. К одному из концов приставляем следующую доску, ставим брусок и повторяем операцию. Так собираем первый ряд. Будет он выглядеть так, как на фото слева.

Второй и третий ряды собираются по аналогии. На каждое соединение ставим по два метиза (гвоздя или самореза). Только следите, чтобы не выступали головки и не торчали острия.

После того как собрана требуемая высота, можно считать, что песочница своими руками сделана. Но, как всегда, теперь хочется чего-то добавить, чтобы деткам было удобнее. Им обычно нравится лепить куличики, а для них нужна площадка. Можно прибить в углах небольшие треугольники из фанеры или тоже собранные из нарезанных досок. Еще вариант — прибить две продольные доски. Они отлично устанавливаются на бруски по углам. В них же и колотим гвозди.

В продолжении темы «усовершенствования» песочниц. Каждый раз таскать домой игрушки, которые выпачканы в песке — не очень приятно. Проблема решается просто: отгородить часть под игрушки. Удобно и вам и ребенку. Ставится дополнительная стенка, которая к существующим крепится тоже при помощи брусков.

А чтобы не было соблазна насыпать туда песочка, можно придумать крышку. На ней можно будет посидеть, а можно — выстраивать куличики.
Пару досок, немного фантазии и обычный ящик превращается в машину. Такая точно понравится мальчишкам.

Как сделать игровой домик для детей на участке смотрите тут.
Песочница-трансформер со складной крышкой
Начинается строительство точно также, как описано раньше: собирается короб из досок. Весь фокус в конструкции крышки. Понадобятся еще доски на крышку и петли — четыре обычных дверных и четыре с одной длинной полкой.
В нашем примере на каждую из сторон крышки пошло по 6 досок. Крепили их попарно. Сначала к готовому коробу с одной и с другой стороны прибили по две доски.

К ним, прикрутили короткую полочку петли, похожей на амбарную. К длинной полке тоже прикрепили две доски. Важно, чтобы вторая крепилась хотя-бы на половину ширины, иначе ее вывернуть может.

Прикручиваем на обычные дверные петли следующую доску. Полочки находятся при этом с другой стороны. Тогда получается, что вторая часть крышки откидывается в другую сторону. Вторая доска крепится к закрепленной при помощи вспомогательного бруска. Он набивается с двух сторон на расстоянии около 15 см от края.

Чтобы откинутая крышка не давила на петли, на первые две доски набивают дополнительный отрезок доски. Он служит опорой, при нагрузке доска не прогибается.

По опыту эксплуатации, можно сказать, что под сиденьями дети почти не играют: неудобно. Чтобы использовать эту площадь более рационально, ее можно отгородить под отсек для игрушек. Еще плюс такого решения — песка потребуется меньше.

В данном примере доки покрашены пропиткой, которая одновременно придает древесине цвет. Если есть желание, можно использовать обычную укрывистую краску. Только берите для древесины, для наружных работ. Иначе через пару дождей, пойдет она пузырями или потрескается. Используя краску, можно песочницу покрасить в более «девичьи» цвета., хотя пропитки тоже могут быть разного цвета, но они просто дают оттенок.

Песочница-кораблик
Для мальчишек можно сделать песочницу-лодку или корабль. Основное «тело» строится как обычно, все остальные надстройки пристраиваются к нему.
В данном варианте решено было сделать песочницу невысокой. К сбитому корпусу пристроили треугольник — нос будущего корабля. Он значительно выше основной части. Чтобы доски держались крепко, в землю вбиты на 60 см вглубь по две доски с каждой стороны. К ним и прибивались доски. В углах они тоже скреплены, но только между собой — гвоздями (били наискосок).

Так как перепад высот оказался значительным, с «палубы» на нос сделана лестница. Верх зашит доской, укреплены мачты.

Остались только отделочные работы и оснастка. Через некоторое время, решено было сделать на корме пристройку — и место, спрятаться от солнца, и поставить там ящик для игрушек. Поставили столбы из бруса, обшили вырезанной по размерам фанерой. В окончательном варианте корабль выглядел так.

Примерно по такой же технологии сооружен другой кораблик.

Как сделать качели для детей и взрослых читайте тут.
Навесы
Далеко не всегда получается поставить песочницу в полутени. Чаще ставят на солнце, а потом делают затенение — какой-то навес или зонтик. Есть немало интересных конструкций таких навесов, которые быстро и легко сделать.

Самый простой в реализации пожалуй, этот навес: две стойки крепятся посередине, между ними — поперечина. Плотная тань перекидывается через поперечину и крепится к вбитым петлям.

Этот навес ненамного сложнее. Требуются четыре стойки. Они вверху соединяются планками — делают верхнюю обвязку. По размерам шьют тент и натягивают его. Крепить можно хоть кнопками, хоть декоративными гвоздями. Главное, чтобы была возможность по осени снять.

Такую крышу сделать чуть сложнее. К верхней обвязке стоек крепят треугольники — стропильную систему. Их соединяют вверху продольным брусом, который правильно называется «конек» и ставят подпорки по середине. Под мягкую черепицу, которая использована в этом случае прибивают фанеру или ОСП, а сверху уже укладывают кровельный материал.
Обратите внимание еще на декор самой песочницы: по периметру вбиты/вкопаны березовые чурки, которые изнутри закрыты досками: чтобы кора отслаиваясь не попадала в песок. Довольно интересное решение.

Еще один несложный козырек от солнца для песочницы. Два треугольника соединены тонкими планками. Крепятся к стойкам, только желательно стойки сделать более основательными. Для маленьких детей хватит и такого сечения, а для детворы постарше — от 4-х лет — требуется нечто более солидное — не менее 60*60 см. Для экономии можно сшить две доски — сбить гвоздями с двух сторон. Натянуть тент труда не составит.
Как сделать песочницу с «грибком» небольшим дощатым навесом — смотрите в видео
Крышки
Второй необходимый для песочниц атрибут — крышки. Мало того, что в песок падают листья и попадает всякий мусор, так еще и животные любят там…находится. Предотвратить посягательства на чистоту песка можно при помощи крышки. В самом простом варианте это сбитый из досок или вырезанный из фанеры щит, к которому приделаны ручки.

Чтобы не приходилось каждый раз щиты снимать и ставить, можно приделать петли, а чтобы дверцы не висели, приварите ручки, на которые они могут опираться. При откинутой крышке получится две небольшие игровые площадки. На них дети могут сидеть или строить свои песочные замки. Потому удобнее такие крышки делать из фанеры: щелей нет и по весу меньше.

Есть еще более интересная конструкция — выездная. Этот тип крышки точно делают из фанеры. Прибивают верхнюю планку так, чтобы осталась щель. В нее и вставляется лист фанеры. А чтобы противоположный конец не болтался, прибивают ножки — небольшие куски бруска.

По-другому реализован тот же принцип в варианте на фото ниже. Он уже для тех, кто хорошо владеет плотницким искусством.

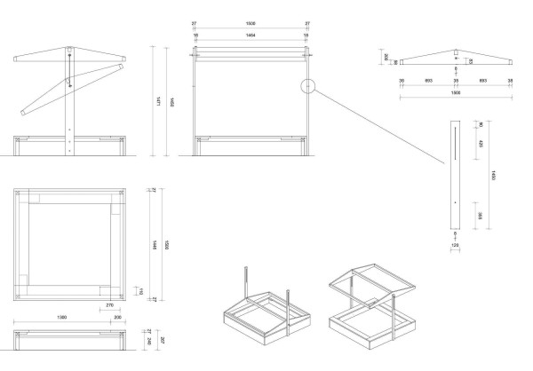
Чертежи
Чтобы песочница своими руками строилась быстро и просто, осталось предоставить вам несколько чертежей. От них можно отталкиваться, взять за основу. Вносить коррективы можно и нужно.




