Малогабаритные квартиры имеет большая часть населения нашей страны. И в старых домах и в новостройках именно они покупаются первыми: цены более приемлемы. После покупки такого жилья сразу возникает вопрос о том, как сделать ремонт в маленькой квартире так, чтобы она была удобна, функциональна и красива. Дело непростое, но так как такая задача встречается очень часто, наработан ряд решений под разные вкусы и запросы. О них и пойдет речь.
Сделать квартиру-студию
В последние годы среди молодежи (и не только) популярны квартиры-студии. Это помещения с минимумом перегородок. Выделенными остаются только туалет с ванной, иногда — спальня. Все остальные стены сносятся полностью (если они не несущие) или частично.

Есть несколько тонкостей, которые надо знать при таком виде ремонта:
- Вам надо узнать, есть ли в вашей квартире несущие стены (сходите в эксплуатационную организацию, у них есть поэтажные планы, на которых все расписано). Если они есть, их разрушать нельзя. Такие перегородки можно убирать частично, проведя меры по усилению остающихся фрагментов. Проект такой перепланировки заказывают в специализированных бюро.
- Убирать стены, отделяющие кухню, можно только если она оборудована электроплитой. При наличии газового оборудования перегородки убирать не разрешают. Этот пункт можно обойти. Сделать развижную перегородку, которая может складываться и раскладываться. (Про установку раздвижных дверей читайте тут).
- Перенос или расширение площади влажный помещений возможен только на место технических помещений (коридора, кладовок, стенных шкафов). Расширять их за счет жилой площади нельзя.

Пример небольшой квартиры-студии
В любом случае перепланировка со сносом стен должна быть утверждена. Для этого заказывают проект работ, его подписывают в управлении архитектуры и только потом начинают сам ремонт. Тогда никаких проблем у вас не возникнет.
Плюсы
К положительным сторонам переделки обычной квартиры в квартиру-студию можно отнести следующие моменты:
- Вы получаете просторное помещение вместо нескольких комнат малой площади.
- Увеличивается полезная площадь. Это только кажется, что стены занимают мало места. Посчитайте: стена длиной 3,5 м и шириной 20 см (узкий простенок) занимает площадь 3,5 * 0,2 = 0,7 квадратных метра. Это одна совсем небольшая стена.
- Для большого помещения можно выбирать любой стиль, применять интересные задумки.
В общем, такой ремонт в маленькой квартире позволит визуально (и фактически) сделать ее больше. Причем функциональность ничуть не страдает, а жить становится более удобно.

Недостатки
Без недостатков не обойтись. Первый — отсутствие возможности уединиться. Если квартира предназначена для одного человека, чувствовать в ней он будет себя комфортно. Если же жить будут двое, вам надо быть готовыми к тому, что вы постоянно друг у друга на глазах.
Второй — распространение запахов их кухни. Отсутствие перегородок приводит к тому, что все ароматы с кухни беспрепятственно проникают в все уголки квартиры. Спасти положение может правильная вентиляционная система и мощная вытяжка.

Третий — необходимость поддержания идеального порядка. Сразу, с порога вы видите все или почти все пространство. Так что никакого беспорядка быть не может.
Решение превратить квартиру в студию — радикальное и подходит далеко не всем. Необычно для нас отсутствие отдельных комнат. Зато есть другие способы сделать ремонт в маленькой квартире, улучшив ее функционал.
Объединить санузел
Большая часть квартир стандартной планировки страдает одним недостатком: очень маленькой площадью, отводимой под санузел — туалет и ванную. Причем, по какой-то причине, изначально эти два помещения раздельные. В результате и ванной и в туалете не развернуться и точно ничего дополнительного не поставить (стиральную машинку и водонагреватель, например). Исправляют ситуацию убрав перегородку и сделав его совместным.

Конкретный план переделки зависит от сходной планировки, но общая идея одна: разрушают перегородку, убирают одну из дверей. В некоторых вариантах получается немного увеличить площадь санузла за счет площади «сворованной» у коридора (как на фото выше).
Как уже писали выше, увеличивать площадь влажных помещений можно только за чет технических помещений. При этом во время ремонта необходимо особенно тщательно подойти к вопросам гидроизоляции. Необходимо нанесение нескольких гидрофобных слоев (не менее 3-х).
Плюсы
Достоинства переделки санузла в совмещенный вполне очевидны. Увеличивается его площадь, уменьшается количество дверей. Более функциональны становится помещение. О том, удобно это или нет, спорить бесполезно. Кому-то такой вариант подходит, кому-то нет.

Минусы
Они могут проявляться в «густонаселенных» квартирах, когда все одновременно собираются на работе или в школу. Если один из членов семьи надолго занимает санузел, остальные нервничают.
Утепление и присоединение балкона или лоджии
Появление новых теплоизолирующих материалов позволяет качественно утеплить балкон/лоджию, застеклить ее и, убрав оконный блок, соединить с помещением. Чтобы на бывшем балконе уж точно было тепло, туда проводят отопление. Только обратите внимание, что вынос радиаторов центрального отопления туда запрещен категорически. В таком случае можно сделать электрический подогрев пола. Так как площади небольшие, счета тоже не будут огромными (при правильном утеплении).

Обратите внимание, что на балконы и лоджии нельзя выносить газовые приборы и сантехнику. Это актуально для кухни. Вы можете поставить несколько шкафов, холодильник, вынести обеденную зону, но газовая плита и мойка должны оставаться на «основной» площади.
Еще один важны момент, касающийся непосредственно ремонта. При объединении помещения с балконом или лоджией убирать можно только ту часть стены, которая находилась под оконным блоком. Разбивать оставшиеся куски стены нельзя категорически. Эти «остатки» являются частью несущей конструкции и без них дом может просто разрушиться.

Плюсы
С достоинствами такого решения все очевидно. Подобный ремонт в маленькой квартире приводит к тому, что полезная площадь значительно увеличивается. Особенно заметно это именно в малогабаритных помещениях. Была у вас кухня в 6 кв. м, вместе с балконом это уже 8 квадратов, а может и больше.
Минусы
Недостатки тоже лежат на поверхности. Это — значительные затраты. Важно сделать хорошее утепление. Чтобы при этом не терять драгоценную площадь, надо использовать качественные материалы, которые при малой толщине дают хорошие показатели по теплоизоляции (экструдированный пенополистирол). Стоимость этих материалов не радует — они дорогие.

Такая же ситуация и с остеклением. Обычно ставят пластиковые (ПВХ) окна. При этом необходимы качественные, желательно, трехкамерные стеклопакеты, а профили должны иметь не менее пяти камер. Подобные пластиковые окна относятся к разряду элитных, и стоят соответственно. Но покупать более дешевые не советуем: будет зимой холодно.
Перепланировка
Еще один радикальный способ сделать ремонт в маленькой квартире и улучшить при этом ее жилые качества — сделать перепланировку. Говорить об этом без привязки к конкретному плану сложно, но есть основные моменты, которые встречаются в большинстве случаев:
- Перенос двери. По непонятной причине двери в комнатах часто делают посередине (или почти) стены. Это очень неудобно, так как намного снижает возможности использования площади. В таком случае двери переносят ближе (может и вплотную) к одной из стен. Этот тип переделки к перепланировке не относится и предварительного согласования не требует.

В этом варианте ремонта малогабаритной квартиры не только перенесли двери, но и перегородки и объединили санузел - Демонтаж встроенных шкафов и кладовок. На освободившемся пространстве или в другой выделенной зоне можно сделать гардеробную или современный шкаф-купе (есть на рисунке выше).
- Из однокомнатной сделать двухкомнатную квартиру. Лучше всего такой трюк проходит в угловых квартирах, у которых имеется два окна. В таком случае получаете два небольших, но полноценных помещения.

Пример переделки однокомнатной квартиры в двухкомнатную - Разделение проходных комнат. При этом часто теряется жилая площадь, но иметь изолированные комнаты порой важнее.

Один из вариантов разделения комнат в «распашонке»
Это, в основном все моменты, которые часто встречаются. Их можно комбинировать, добиваясь тех характеристик, которые вам необходимы. Планировать переделки надо скрупулезно, Точно зная расстояния и откладывая их на плане. Можно воспользоваться дизайнерскими программами, которые позволяют создавать трехмерные пространства и даже заполнять из потом мебелью. Так проще оценить результат, чем на бумаге.
Пример ремонта в маленькой квартире (фотоотчет)
Обычная малогабаритная однокомнатная квартира в доме старой постройки.

Ремонт маленькой квартиры решено начать с объединения санузла. Кроме того будет выравниваться стенка, которая сейчас стоит под углом.
Ремонт в ванной
Сначала ломаем перегородки в санузле.

Далее все стены оббиваются до кирпича, снимается и плитка на полу. Работа перфоратором пыльная, много мусора.

Под трубы холодной и горячей воды, под канализацию делаем штробы. Сначала режем кирпич болгаркой с алмазным диском, потом вырубаем внутренность долотом и молотком.

В подготовленные штробы укладываем трубы водопровода и канализации. Водопровод паяем из полипропилена. Хороший материал, легко паяется, имеет длительный срок службы.

На месте стояка делаем короб из гипсокартона — под краны, счетчики и другие сантехнические устройства. Свободное пространство вверху закладываем кирпичом.

Далее приступаем к установке перегородок. Для этого используем стеновые пазогребневые плиты (ПГП). В местах примыкания к стенам и полу укладываем пробковую подложку, клеем специальным клеем, скрепляем прямыми подвесами для гипсокартона. Перед закреплением тщательно проверяем вертикальность и горизонтальность.

Пол очень неровный. Сначала выкладываем кирпичом почти до нужного уровня, грубо выравниваем раствором. После высыхания заливаем тонким слоем самовыравнивающейся смесью.


Проверяем результаты выравнивания — отклонения не более 5 мм. Под плитку будет нормально.
Теперь можно ровнять стены. Одна сильно завалена, примерно от середины высоты вверх. Расхождение составляет почти 7 см. Берем раствор, проволоку и послойно накладываем, армируя слои.


Когда стена стала более-менее ровной, можно выставлять маяки, затем по ним штукатурить.

На другой стене возле места под краны ванной и умывальника большие дыры. их тоже надо заделать с армированием — слой больше 3 см.


Приступаем к штукатурке (как штукатурить стены по маякам читайте тут).

Пока сохнут стены, промазываем пол гидроизоляцией. Наносим в два слоя, углы дополнительно проклеиваем серпянкой.

На подсохшую штукатурку можно класть плитку.



После того, как выложена плитка, облагораживаем ванную. Собираем каркас под отделку, обшиваем его гипсокартоном (влагостойким), а на него устанавливаем люки и клеим плитку.





Совместный санузел готов, переходим на кухню.
Ремонтируем кухню
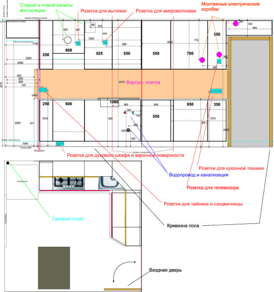
В программе CorelDraw разработан проект кухонного гарнитура. Составлялся с учетом подключения водопровода и канализации, по результатам была разработана схема электропроводки. В программе это делать намного удобнее, чем на листке бумаги, сразу есть возможность проставить уже имеющиеся размеры и потом от них отталкиваться.


Далее уже собственно процесс ремонта. Начинается все с удаления старых отделочных материалов, оббивается плохо держащаяся штукатурка, снимается краска. Все обдирается вплоть до материалов стен.

По стенам делаем штробы, укладываем в них провода, подводя в места, где будут располагаться розетки. Долго и пыльно. На потолке не штробим — он будет натяжным, потому просто поверху укладываем и крепим.

Стены более-менее ровные, так что штукатурить нет нужды. Хватит шпаклевки (как шпаклевать стены читайте тут).


Ставим пластиковое окно и разводим систему отопления.

Для того чтобы выставить подоконник на нужную высоту, распилена доска на небольшие бруски. При помощи клиньев подоконник выставили в уровень. Сверху уложили груз (круги от разборной гантели), промежутки заполнили монтажной пеной. Пену брали со слабым расширением — чтобы не выгнулся подоконник.

Продолжаем приводить в порядок стены. Кладем плитку фартук. По уровню, ровно в горизонт крепим направляющие (лучше профиль гипсокартона, так как деревянные планки редко бывают идеально ровными). Хоть направляющая нужна только на время, крепить надо нормально, чтобы не сдвинулась при работе. При укладке фартука просто опираем плитку на выставленную планку.

О видах кухонных фартуков можно прочесть тут.
Приступаем к ремонту пола. Сначала снимаем старый оргалит, потом с деревянного пола удаляем краску, ровняем. Долго и муторно. Было бы достаточно средств, можно было бы его полностью заменить, но оставили как есть.

Настилаем ДВП, прибиваем гвоздями по периметру, а потом в шахматном порядке по площади. Сверху расстилаем линолеум.

Теперь очередь стен. Все просто — клеим обои.

На фабрике по своим размерам заказаны запчасти из ламинированного ДСП. Кромки клеились самостоятельно. Берем утюг, проглаживаем кромку, приклеивая ее к срезу ДСП. Остужаем мокрой тряпкой, лишнее срезаем острым ножом, а края ровняем мелкой наждачкой, приклеенной к бруску. Получается точно как заводская кромка.

После по чертежам собираем весь кухонный гарнитур. Это — уже из другой оперы, но в моем случае входило в ремонт.


Обеденный стол решено сделать раскладным с поворотным механизмом. Он раскладывается по длинной стороне столешницы, две половины скреплены ломберными петлями, есть точка поворота (на фото там, где видна поперечная планка), вдоль которой и поворачивается столешница. В сложенном виде стол небольшой, в разложенном — в два раза больше.

Пока все собиралось, прибыли фасады — МДФ, покрытый пластиком в алюминиевой рамке. Красиво и очень надежно в плане ударостойкости.


Вот ремонт на кухне и закончен. Настал черед балкона.
Ремонт на лоджии
Решено объединить лоджию (7 кв. м.) с комнатой. При небольших площадях такая прибавка очень ощутима. Сперва убрали всю отделку, сняли старое остекление. Парапет оставили пока — для безопасности и начали с выравнивания пола под укладку газоблоков.

При кладке стенки через ряд укладывали армирующий пруток, концы арматуры заделаны в стены. Под арматуру в уложенных блоках делается канавка, в нее — пруток (8 мм), который закладывается клеем. (Подробно о кладке газобетонных перегородок читайте тут).

Выложив три ряда блоков, снаружи закрепил планки — обрешетку под сайдинг. К ним сразу и прикрепил сайдинг. Потом сделать это будет проблематично. А пока, привязавшись для страховки веревками к вмонтированному в стене блоку (9 этаж), работал перегнувшись. Стенка собрана быстро, как и обшивка снаружи.
Приехала бригада из фирмы, поставили окна. Стык окна со стеной закрыт пароизоляционной лентой — чтобы теплый воздух не попадал в микроскопический зазор и там не образовывался конденсат.

На стены, потолок и пол закуплен утеплитель — экструдированный пенополистирол. На стены его крепим специальными пластиковыми грибками, на пол — на монтажную пену. Так как поверх утеплителя будет укладываться деревянный пол, с шагом в 60 см прикреплены деревянные закладные, к которым потом будут крепиться лаги.

Поверх теплоизоляции клеем пеноплекс с лавсановой теплоотражающей пленкой. Советовали фольгированный пеноплекс, но в магазинах его не было. Оклеены все поверхности, кроме теплой стены. Поверх него набита обрешетка под отделку пластиковыми панелями.

В одном из торцов будет стоять компьютерный стол. В этом месте на стену прикреплена фанера. К ней будет крепиться каркас стола и монитор. Сразу тянем к этому месту электропроводку, интернет-кабели, устанавливаем розетки. Потом можно и зашить панелями.

Обшивка пластиковыми панелями — одна из самых быстрых и простых операций во всем ремонте. Ставим полосу стартовую полосу, в нее вставляем панель, отрезанную по размеру, пристреливаем к планкам скобами из строительного степлера. И так дальше.

Одна из задач — правильно сделать откосы из пластика Вроде, получилось хорошо (как сделать пластиковые откосы читайте тут).

Приступаем к полу. На пеноплекс укладываем фанеру, на нее — еще слой пеноплекса, к которому крепим датчик температуры пола.

По полу раскатываем и на двусторонний скотч крепим греющую пленку. Она не должна находится под мебелью, так что расход не слишком большой. На стену устанавливаем терморегулятор.

Если бы укладывался ламинат, можно было бы его класть сразу на греющую пленку. У нас будет линолеум, так что поверх кладем еще слой фанеры, а уже не нее — линолеум.

Теперь пришло время снять оконный бок и двери на балкон.

Оставшийся проем облагораживаем ламинированным ДСП. Делаем по принципу откосов, сажаем на монтажную пену. Как устанавливать откосы из ЛДСП или МДФ читайте тут.

Далее собираем и устанавливаем мебель — привезли раскроенные части, тоже клеим кромки, собираем.

Комната
В процессе ремонта перенесены двери. Перегородка из пенобетонных блоков, так что выпилить новый дверной проем оказалось легко. Старый заложили пазогребневыми плитами, закрепили металлическими планками и стыки проклеили малярной сеткой.

Остальная отделка неинтересна и стандартна: сдираем старые обои, отстающую штукатурку. Грунтуем, штукатурим по-новой и клеим свежие обои. Вообще, ремонт комнаты оказался самой легкой частью.
Пол был ровный — на стяжку уложена фанера, так что в это раз просто сверху настилаем ламинат. Легко, быстро, непыльно.

Последний этап — сборка мебели. Ее тоже разработали в той же программе, заказали нарезанный по размерам ДСП. В одну стену от края до края устанавливается стенной шкаф с дверями-купе.

Понравились две «примочки» — выдвигающаяся гладильная доска и вешалка для мелочей. Очень удобно, кстати.


Привезла заказанный угловой диван.

Свободную стену заняли под полки-шкафчики, туда же определили телевизор.

Вот и все, ремонт в маленькой квартире закончен. По срокам получилось более года, но все делалось в одни руки. Исключение — натяжные потолки и ПВХ окна.
