Часто в квартирах и домах санузел делают совмещенным. Это оправданно с точки зрения экономии пространства (на одну стену меньше), да и с точки зрения функционала тоже. Но разработать дизайн санузла непросто: надо правильно разместить сантехнику, а еще порой и бытовую технику (водонагреватель и стиральную машинку). Обо всех тонкостях этого непростого занятия далее.
Эргономика санузла
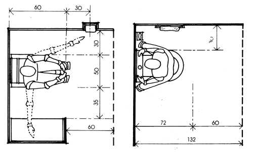
Чтобы пользоваться сантехникой было удобно, ее располагать надо на определенной высоте, сохраняя минимальные допуски к стенам и другим предметам:
- оптимальный размер умывальника — 48-61 см (при меньших размерах даже руки мыть неудобно);
- перед раковиной должно быть свободное место — не менее 69 см;
- верхние полочки в санузле должны располагаться не выше чем на 180 см;

Правильное расположение умывальника и полочек над ним - центр унитаза должен располагаться не ближе, чем в 40 см от боковой стены;
- биде ставят так, чтобы боковина находилась не ближе чем в 30 см от стены;

Расположение унитаза и биде относительно стен - держатель для туалетной бумаги располагают на расстоянии вытянутой руки — порядка 80-90 см от задней стенки на высоте 60-70 см;

Расположение бумагодержателя и полотенца
Разрабатывая дизайн санузла эти размеры надо иметь в виду, но их можно и нужно корректировать. Они высчитаны под средний рост и средние размеры тела человека. Определяясь с точным местоположением того или иного предмета интерьера, «примеряйте» расстояния на себя. Если вам комфортно, на таком расстоянии и можно устанавливать.
Как все расставить
В современном санузле кроме сантехники присутствует еще и бытовая техника. За неимением другого места сюда ставят стиральную машинку, а иногда и бойлер. Так что кроме унитаза, раковины и ванной/душа приходится искать место еще для двух габаритных предметов.
Ищем место для машинки
Один из вариантов — подобрать машинку и раковину так, чтобы стиралка спряталась под рукомойником. Минус такого решения в том, что раковина будет выше чем обычно, а машинку придется искать узкую. Если в семье высокие люди, чуть выше расположенная сантехника — это не страшно, а экономия места солидная. На фото ниже один из вариантов такого дизайна санузла. Раковина использована прямоугольная — таких сегодня много.


Если поднимать рукомойник никак нельзя, машинку ставят где она «вписывается». Чтобы место над ней не гуляло, сверху можно сделать полочки. Если есть необходимость повесить бойлер, над машинкой ему самое место.


Если места очень мало, присмотритесь к стиральным машинам с верхней загрузкой. Они имеют меньшие габариты и могут втиснуться в небольшой промежуток.

Ванная или душевая кабинка
У ванной, безусловно, есть преимущество — в ней можно понежиться в теплой воде. Но места она занимает много и в некоторых случаях таким удобством можно пренебречь, поставив или сделав душевую кабину.
Если прощаться с ванной никак не хочется, будем «вписывать» ее и все необходимые предметы. Самый очевидный способ — разместить раковину так, чтобы она одним краем находилась над ванной. Но при этом надо следить за тем, чтобы пользоваться умывальником было удобно.

Если вы просто используете маленький по размерам умывальник, это доставит значительные неудобства: брызги будут лететь во все стороны, а принадлежности будет некуда поставить. В таких случаях делают столешницу (как на фото выше), облицовывают ее мозаикой или плиткой. Места занимает эта конструкция меньше, а функциональность даже выше.
Другой вариант — поставить угловую ванную, освобождая тем самым один угол для установки стиральной машины или унитаза.

Еще вариант — использовать ванную нестандартной формы. Например, такой как на фото. И место под машинку нашлось…

Если все-таки в санузел не получается вписать ванную, ставьте душевую кабину (как устанавливать душевую кабину читайте тут). Причем совсем не обязательно покупать готовую, можно сделать ее самостоятельно — соорудить поддон из плитки и установить дверки.

Самодельная душевая кабина хорошо вписывается в торец длинного и узкого санузла. Можно просто отгородить около метра от стены, установив двери. Причем двери можно ставить стеклянные (из закаленного стекла). Они не разделяют небольшое пространство и дизайн санузла получается более гармоничным.
В квадратных помещениях выгораживают часть площади, ставя разделительную стенку. При таком решении надо помнить, что минимальный размер душевой кабинки — 90*90 см. Это мало — сильно руками в таком закутке не помашешь, так что при возможности делайте хоть немного больше.

Куда поставить биде
Пользоваться санузлом намного удобнее, если в нем есть биде. Оптимально, если его можно разместить рядом с унитазом (расстояние между двумя фаянсовыми изделиями не менее 40 см). Если места рядом не хватает, установить можно и на противоположной стене. Главное, чтобы там была подведена вода и слив.

Проблема в том, что со всеми подходами этот сантехнический предмет занимает примерно метр полезной площади. Если общая площадь санузла всего 4-5 кв.м. это очень много. В таком случае можно установить гигиенический душ. К унитазу подводят теплую/холодную воду, ставят смеситель и гибкий шланг со специальной насадкой. По функциональности такой вариант чуть уступает биде, но тоже очень удобен.

Модные тенденции в отделке
Чаще всего дизайн санузла разрабатывают с учетом того что стены будут выложены керамической плиткой. До не давнего времени конкурентов у этого материала не наблюдалось. Сегодня все более популярной становится мозаика. Это очень маленькая плитка (стеклянная или керамическая), наклеенная на полимерную сетку. Мелкие плитки обычно имеют несколько оттенков, что при дает стенам интересный вид и присутствует в большинстве современных интерьеров санузла.

В оформлении стен санузла наблюдаются такие же тенденции — комбинирование плитки разных цветов и оттенков. Также как и при комбинировании обоев, плитку производители выпускают коллекциями дизайн которых разработан так, чтобы они между собой сочетались.

Изменились и стили дизайна санузлов — все чаще оформляют помещение с современном стиле, в духе минимализма или хай-тек. При создании такого интерьера используют сантехнику прямоугольных форм и минимум цветов. Для всех этих стилей характерны нейтральные тона для стен — белый, серый, бежевый. А на этом фоне уже может присутствовать несколько ярких элементов из совместимой гаммы.

Впрочем, современная сантехника сама по себе может быть декором. Есть весьма декоративные формы с изящными очертаниями.

Дизайн санузла в фото































