Ремонт ванной — одна из самых длительных затей: очень много операций, требующих времени. Завершает все отделка ванной комнаты плиткой. Тоже не самая простая задача, требующая знания технологии. Кроме того, надо разработать схему укладки, да не как-нибудь, а красиво. А еще — подсчитать количество и не ошибиться.
Технология
По современным требованиям плитка кладется на ровное основание. Ровное — это с максимальным перепадом высот в 5 мм на 1 кв. м. Если стены или пол данному требованию не отвечают, для стен необходима шпаклевка — при отклонении до 3 см — или штукатурка при более кривых поверхностях. Пол в таком случае выравнивается при помощи стяжки.

Если на полу плитка уже есть, но ее хотите заменить, придется старую сбить, выровнять более-менее все перепады и залить бетонным раствором, выровнять по маякам. Можно использовать самовыравнивающиеся смеси, но их тоже необходимо разравнивать, хотя и не так тщательно, как обычный бетон. После того как бетон наберет порядка 50% проектной прочности (около 7 дней при температуре +20°C), можно работы продолжать.
Иногда имеющаяся на полу плитка никак не удаляется (обычно мелкая). В этом случае стяжку в 2-3 см можно залить поверх затем уже укладывать новую.
Каким составом ровнять стены ванной
Чем ровнять/шпаклевать стены в ванной? Все составы делают на основе двух вяжущих: гипса или цемента. Так как ванная — помещение с повышенной влажностью, то использование гипсовой штукатурки или шпаклевки нежелательно. Нет, их использовать можно, тем более что во многих многоэтажках стены ванных тоже из гипса. Но гипс очень гигросокпичен и будет впитывать в себя влагу из воздуха, со стен. Этому не помешает ни плитка, ни клей. Чтобы он не «тянул» влагу, на стенах не появлялся грибок или плесень, поверхности необходимо будет хорошо пропитать составами, снижающими гигроскопичность. Причем желательно несколько раз. А это — дополнительные затраты, причем немалые. Потому лучше сразу использовать составы на основе цемента — они изначально имеют невысокую гигроскопичность.

Грунтовка
Перед началом штукатурки или шпаклевки, перед укладкой плитки, все поверхности грунтуют. Про этот этап забывать нельзя. Грунтовки улучшают сцепление одного слоя материалов с другим, что положительно сказывается на качестве отделки. Если класть отделку на стены без грунтовки, велика вероятность того что отделка будет отскакивать, иногда вместе со шпаклевкой, иногда просто с клеем — где обнаружится самое слабое сцепление.

При выборе грунтовки обращайте внимание на ее дополнительные свойства. В ванной комнате пригодятся антигрибковые добавки, а также гидрофобные добавки (отталкивающие воду).
Как класть плитку
Собственно после всех этих этапов начинается непосредственно отделка ванной комнаты плиткой. Прежде всего укладывают ее на пол. Используют специальный плиточный клей для влажных помещений. Начинают от двери, продвигаются к дальней стене. Обычно вдоль противоположной стены стоит ванная, так что все подрезки будут под ней.
На выровненный пол наносят слой клея около 4-5 мм, зубчатым шпателем снимают излишки, кладут плитку, выравнивают ее в горизонтальной поверхности, проверяя уровнем. Таким же образом укладывают все последующие, выдерживая зазоры при помощи пластиковых крестиков. На пол обычно используют плитку большого формата, потому и крестики берут более толстые — 3-5 мм.
После высыхания клея (срок указан на упаковке) можно начинать отделку стен ванной. Технология проста и очень похожа на описанную выше:
- на прогрунтованную ровную стену наносится слой клея толщиной в 3-5 мм, излишки снимаются зубчатым шпателем, который формирует углубления;
- плитку окунают на несколько секунд в воду, устанавливают на место, прижимают и пристукивают ручкой кельмы, добиваясь ее ровного во всех плоскостях положения;
- проверяют положение при помощи строительного уровня, проверяя горизонтальность и вертикальность установки;
- рядом ставят вторую;
- зазор между соседними элементами выставляется при помощи специальных пластиковых крестиков (2-3 мм в зависимости от формата);
- проверяется вертикальность и горизонтальность.

Есть еще один способ — клей наносят не на стену, а непосредственно на плитку, убирая излишки все тем же зубчатым шпателем. Прикладывают ее к стене и точно также выравнивают. Это способ не лучше и не хуже. Выбирайте тот, который вам кажется более удобным.
Постепенно заполняется первый ряд — от стенки до стенки. На него выставляется второй, и так далее, уже до потолка, потом переходят на вторую стену. Во время работы не забывайте удалять крестики. Клей схватывается быстро, в результате выковырять их бывает сложно. Также следите за тем, чтобы плитка была чистой. Все следы клея, даже самые незначительные, надо вытирать. Использовать можно губку или тряпку, или и то, и другое. Обращайте внимание и на то, чтобы клей не выступал из швов. Они должны быть наполовину пустыми — их надо будет отделывать — затирать.
Затирают швы специальными окрашенными составами, которые подбирают в тон или делают контрастными. После того как клей высох, затирку разводят до состояния пасты, наносят в швы при помощи небольшого резинового шпателя, им же снимают излишки. Остатки подтирают мягкой нелиняющей тряпкой.

Есть еще немало особенностей и нюансов — по раскладке, оформлению ванной, дверного проема и т.д., но в общем, отделка ванной комнаты плиткой происходит именно по такой технологии.
Особенности раскладки
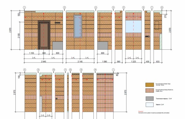
Чтобы получить качественную и красивую ванную, необходимо предварительно продумать раскладку плитки. Допустим, вы присмотрели уже несколько вариантов разных цветов или размеров. Теперь надо решить какую лучше купить и в каком количестве. Сложность состоит в том что сегодня отделка ванной комнаты плиткой резко бывает однотонной от пола до потолка. Обычно сочетаются два-три цвета, да еще присутствует некоторое количество фрагментов с рисунком или декором. А нам необходимо точно посчитать их количество, чтобы закупить сразу из одной партии и не ошибиться при этом (из-за особенностей технологического, процесса цвета разных партий могут иметь существенные различия).

Чтобы решить эту задачу и, одновременно разработать схему раскладки плитки, вам нужен будет большой лист бумаги в клетку или миллиметровки, карандаш и цветные карандаши. На листе рисуете развертку помещения, точно соблюдая размеры и пропорции. На соответствующих стенах отмечаете расположение дверей, ванной, сантехники, зеркала, стиральной машины. Все предметы рисуете в том же масштабе. Рисунок лучше делать крупным — так проще будет прорисовывать детали, а также считать плитку поштучно.

На подготовленном плане, в том же масштабе, прорисовываете плитку, закрашивая ее соответствующими цветами. Так можно будет более точно представить, как все будет смотреться, протестировать несколько вариантов раскладки — в горизонтальными полосами, вертикальными, смещая их, делая шире/уже/выше и т.д.
Когда вы определитесь с тем как именно вы хотите выложить ванную комнату (в смысле расположения разных цветов, ширины полос и других нюансов) надо будет выбранную раскладку перерисовать еще раз, но уже с учетом подрезки по размерам.

Если начать класть плитку просто от одного из углов, в другом придется ее подрезать. Так как сегодня в тренде плитка крупного формата, эти обрезки с одной стороны сильно портят общее впечатление. Поэтому ее раскладывают относительно центра стены, «разгоняя» обрезки по двум углам. Получается симметричная картинка, что смотрится намного лучше.
Только и тут есть нюансы. Чтобы стена смотрелась нормально, ширина подрезки должна быть более половины. Слишком узкие вставки смотрятся куцо. Это регулируется расположением: по центральной линии можно разместить шов или середину плитки. Рисуете так, чтобы по углам не оказались лишь узкие полоски.
Перерисовываете выбранный способ укладки с учетом этих моментов. Потом считаете количество с учетом тех, которые необходимо обрезать. Да, количество плитки будет больше, но вид вашей ванной в таком варианте гораздо более привлекательный.
Принципы создания дизайна ванной комнаты своими руками описаны тут. Особенности оформления совмещенных санузлов описаны тут.
Как обложить плиткой ванну — прямоугольную, округлую
Один из важных моментов при отделке ванной комнаты плиткой — как оформить лицевую часть ванны. Чаще всего ее тоже оклеивают плиткой (еще вариант — обшить пластиковыми панелями). Но просто так ее не повесишь, необходимо основание. Его делают или из кирпича (лучше керамического, а не силикатного, хоть он и дешевле) или из влагостойкого гипсокартона.
Из обоих материалов можно выложить стенку ровную или округлую. С кирпичами все более-менее ясно, просто задаете выкрадываете по начерченной дуге, обазуя слегка ломанную линию. Она потом скугляется штукатуркой.
Чтобы изогнуть гипсокартон, его с внутренней стороны нарезают на полосы шириной 3-5 см в зависимости от радиуса изгиба, пол линиям ломают гипс и изгибают его как необходимо. Выложив подходящей формы основание, его грунтуют и уже можно на клей стандартным способом укладывать плитку.

Есть при отделке ванной еще одни тонкость: между бортиком ванной и одной из стен может быть приличное расстояние — от 5 до 15 см. Это расстояние надо чем-то закрывать, иначе вниз будет затекать вода и чем расстояние больше, тем проблематичнее его закрыть. Выход — сделать полочку из гипсокартона, на который затем наклеить плитку. Порядок работы такой:
- выставляете ванну строго горизонтально;
- переносите на стену линию верхнего края ванной (угольником или линейкой);
- от полученной линии отступаете вниз на толщину планируемых материалов (толщина плитки + толщина гипсокартона + толщина доски, на которую все это будет опираться);
- по полученной линии прикрепляете брус или профиль (верхний край совпадает с нанесенной линией);
- к профилю крепится широкая доска (обработанная антисептиками), которая достает до бортика ванной;
- зазор между доской и ванной заполняется герметиком;
- сверху укладывается вырезанный по размерам кусок влагостойкого гипсокартона;
- грунтуем;
- эту полку впоследствии, при отделке стен, выкладываем подрезанной по размерам плиткой.
Если вы решите установить в ванной душевую кабину, прочесть о процессе сборки можно тут.
Отделка ванной комнаты плиткой: фото-идеи
В последние годы в отделке ванной комнаты есть две основные тенденции:
- Использование плитки крупного формата. Прямоугольной или квадратной — неважно, главное, что размеры солидные.

В основном ванную отделывают плиткой большого формата - Применение мозаики — стеклянной или керамической. Это мелкие квадратики со стороной 1,5-3,2 см, наклеенные на полимерную сетку.

Мозаика — мелкие плиточки, наклеенные на сетку
Есть еще третий вариант — комбинирование. Такие варианты, кстати, бывает особенно интересным.

Еще один нюанс, касающийся дизайна — прямоугольную плитку все чаще стали располагать не «стоя», а «лежа» — в длину. Это оправданно, так как делает помещение визуально более широким.

Вы, наверное, заметили, что все чаще используют полосы — горизонтальные или вертикальные — разной ширины. Делают их на разных стенах.

Не обошла мода и рисунки. Хоть по-прежнему популярны цветы или однотонные варианты, появилась плитка, имитирующая разные натуральные материалы: камень, древесину разных пород, кожу. Получается достаточно интересно: по виду дерево (имитации достаточно качественные), а по ощущениям — керамика.


А вообще, много интересных идей того, как отделать ванную плиткой. Разные сочетания, порой неожиданные.
















