Ванная — помещение, где требуется повышенная температура. По ощущениям так комфортнее, а теплый воздух быстрее унесет излишнюю влажность после принятия душа или ванны. Отопление в ванной делают нечасто. Более распространенный способ — установка полотенцесушителя, о чем и поговорим дальше.
Чтобы все работало без проблем, требуется правильно выбрать схему подключения и правильно ее реализовать. Если вы не будете делать все своими руками, следить за сантехниками придется. Только так можно быть уверенным в том, что вам оставят нормально работающую сушилку.

Виды конструкций сушилок
Полотенцесушители есть разных форм. При их выборе люди часто руководствуются исключительно эстетикой, что не совсем оправданно. Эти приборы нормально работают при хорошей циркуляции воды, но далеко не все модели такую циркуляцию обеспечивают. С некоторыми приходится долго мудрить, подыскивая правильную схему подключения, иначе они просто отказываются работать.
Итак, все полотенцесушители можно разделить на четыре группы:
- П-образные или U- образные. Самые простые модели, элементарное подключение (боковое). Идеально, если при замене старого вы найдете модель с тем же межосевым расстоянием.
- Лесенка. Современные конструкции с некоторым количеством перекладин. Подключение может быть нижним, боковым или диагональным. Но выбирается оно не произвольно, а по совокупности условий (откуда подача, расположение относительно стояка).
- Змейка. Классическая модель с боковым подключением. Установка полотенцесушителя этого типа, как правило, никаких проблем не представляет.

Виды полотенцесушителей - Сложная форма. Есть очень необычные полотенцесушители. Они могут быть даже украшением интерьера, но их грамотное подсоединение — проблема. Как правило, требуется консультация грамотного специалиста, сантехника, который хорошо ориентируется в гидравлике. Как понимаете, найти такого — задача непростая.
Очень часто бывает так, что после установки полотенцесушителя он просто не работает. Если ошибка серьезная, работать перестает также и стояк, к которому он подключен. Потому необходимо знать и выполнять правила подключения.
Куда подключить и где повесить
Подключить водяной полотенцесушитель можно и к стояку горячей воды (ГВС), и к отоплению. Если есть оба эти варианта, то выбирают ГВС. На это есть три причины: меньше мороки с разрешением на подключение, подключать можно в любое время года и, самое важное, — греется такой полотенцесушитель круглый год.
Если же ГВС в доме нет, придется подключатся к стояку отопления. Для этого требуется разрешение УК и проект. Покупаете полотенцесушитель, желательно простой конструкции, идете в ЖЭК с его паспортом (копией), пишите заявление. Если разрешение дают, заказываете проект, тоже нужна будет копия паспорта с размерами подключения. Потом, согласно проекта, выполняете сами или нанимаете исполнителей, например, сантехников из ЖЭКа. Вызываете представителей ЖЭКа для приемки.

При определении места установки полотенцесушителя могут возникнуть вопросы о том, на какой высоте его стоит вешать. Удобнее всего располагать его так, чтобы он находится на уровне головы и ниже. Это если ставите П-образную или змейку. Если речь идет о «лесенках» большой высоты, верхнюю планку располагают не уровне кисти поднятой руки, примерно 190-200 см.
При выборе места установки полотенцесушителя надо учитывать удаленность от стояка. В принципе, чем ближе к стояку, тем лучше — больше шансов на то, что будет работать. Но, можно отнести и на метр или около того, только при выполнении условий:
- малое гидравлическое сопротивление полотенцесушителя, простая форма и сечение 1″ или 3/4″;
- достаточное давление, 2 атм или больше;
- отвод трубами нормального диаметра, на шаг меньше чем стояк.
При этом обязательно выполнять и другие правила подключения. Тогда будут шансы а то, что работать такой «удаленный» прибор будет нормально.
Чем делать отводы и как поменять стояк
Если стояк металлический и менять его вы не собираетесь, то установка полотенцесушителя возможна стальными или полипропиленовыми трубами. Если стояк вы меняете (лучший вариант) и ставите полипропилен, выбора нет — ППР трубы идут и на отводы. Полипропилен брать для горячей воды, лучше — армированный стеклотканью.
Почему не подходит металлопластик? Потому что фитинги у него с сильным заужением просвета. Это очень плохо сказывается на циркуляции. В результате даже 100% работоспособные схемы не дают нормального нагрева.

Немного о том, зачем менять стояк. Это имеет смысл делать в старых домах при ремонте в ванной или санузле смотря, где у вас расположен стояк. Во-первых, трубы обычно уже старые и изношенные. К ним даже отвод бывает проблематично приварить, настолько металл износился. Во-вторых, современный ремонт предполагает скрытую прокладку коммуникаций и вы тоже захотите стояк закрыть. Прятать старую трубу, а через несколько лет все снова переделывать, не самое хорошее решение.
Немного о том, как менять. Вам надо договориться с соседями снизу и сверху, а также с ЖЭКом (ДЭЗ, УК). С соседями о том, что вы отрежете стояк у них и на резьбе установите новый. Почему у них? Потому что оставлять старую трубу в перекрытии опасно: разрушится и потечет, затопит вас или соседей снизу. Потому лучше через перекрытия пройти новой трубой.

Договорившись или нет с соседями, идете в ЖЭК и договариваетесь о дате замены и времени, на которое стояк отключат. Работать могут «местные» слесаря, вы сами, при наличии квалификации сварщика, или нанятые вами люди. После врезки, воду включают, вы проверяете работоспособность полотенцесушителя и системы в целом. Если за 30 минут он не начнет остывать, значит поставлен правильно. На этом замена или установка полотенцесушителя завершена.
Оставить ли байпас
Начнем с того, что такое байпас. Это перемычка между входом и выходом прибора, которая обеспечивает циркуляцию воды при выходе прибора из строя или его отключении.

Если с схеме есть байпас, на входе и выходе прибора можно ставить отсечные шаровые краны. Это удобно — можно при необходимости отключить, при ремонте или замене и не перекрывать весь стояк.
Если такой перемычки нет, никаких кранов ставить нельзя. В этом случае полотенцесушитель — часть стояка, закрывая краны вы полностью перекрываете стояк.

Байпас может быть прямым, как на первом фото в главе или смещенным, на фото ниже. Смещенную перемычку ставят при верхней подаче теплоносителя для лучшей работы (улучшается циркуляция). При нижней подаче смещение только мешает. Если вы не знаете, откуда подается вода, лучше делайте прямой байпас.

Байпасы — прямые или смещенные, делают зауженными. Сужение, также как и смещение улучшает циркуляцию, но только в случае с верхней подачей. Заужение делают трубой, которая на шаг меньше основного, если стояк дюймовый, узкое место делают 3/4″. Размер вставки — не менее 10 см.
Еще раз: смещенный или зауженный байпас работает только при верхней подаче воды. При нижней он мешает циркуляции. Если не уверены, делайте байпас прямым и не зауженным.
Категорически нельзя на байпасе ставить краны. Каждый кран — это потеря давления, а значит, он ухудшает циркуляцию всего стояка. Ко всему, это абсолютно ненужная деталь, которая приносит только вред, а сколько-нибудь заметного улучшения циркуляции в полотенцесушителе не наблюдается. Ну, и кроме того, это нарушение СНиП 31-01-2003 (п 10.6) — вмешательство в общедомовые коммуникации, за что может быть выписан штраф.
Способы подключения
При боковом и диагональном подключении отводы должны располагаться на одном уровне со входами полотенцесушителя или чуть выше/ниже. Что точно не будет работать, так это установка полотенцесушителя если отводы расположены на расстоянии меньшем, чем расстояние между входами. На фото ниже пример нерабочего диагонального подключения с близко расположенными отводами. Черным обозначен вариант ее исправления, с верхней подачей воды.

При подключении надо отводы располагать строго горизонтально или немного под углом. Немного под углом — это от 2 см на метр (2%) или можно чуть больше. Направление уклона зависит от схемы подключения и того, к какому концу этот отвод будет подсоединен. Чтобы было немного понятнее, рассмотрим несколько типовых схем подключения полотенцесушителей.
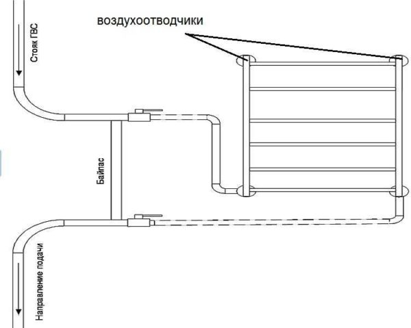
Подключение полотенцесушителя «лесенки»
Эта схема работает независимо от направления подачи горячей воды. Тип подключения — нижний, оба отвода должны располагаться ниже чем нижний край сушилки. При верхней подаче допустим вариант, когда край находится между отводами, но работа уже может быть не настолько эффективной.

В данной схеме можно ставить отсечные краны. Для ее нормальной работы необходимы:
- Установленные на верхних выводах краны Маевского (воздухоотводчики) для спуска скапливающегося в верхней части воздуха. Их надо будет периодически открывать и спускать воздух (как начинает хуже греться). Есть вариант — поставить автоматические воздухоотводчики. Они тоже есть компактные. Это упростит эксплуатацию.
- Байпас прямой с заужением. Размер заужения — трубой на один шаг меньшего диаметра.
- Отводы выполняются трубой на шаг меньшего диаметра чем основной стояк.
Если у вас по высоте проходит этот вариант, делайте его. Схема работает в любых условиях, с полотенцесушителями типа «лесенка» любого вида.
Второй вариант подключения
При разливе горячей воды сверху, можно верхний отвод сделать выше нижнего края сушилки. При смещенном байпасе и его сужении греться должно нормально. Этот способ не самый лучший, но рабочий.

Наличие воздухоотводчиков и стравливание воздуха после остановки системы — обязательны.
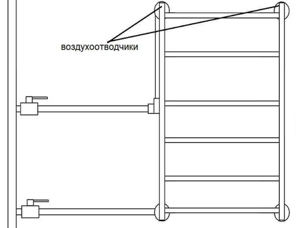
Универсальное боковое подсоединение
Подвести трубы сбоку можно к полотенцесушителю любой из стандартных форм — П-образным, змейке и лесенке. Само подключение от формы на зависит. В стандартном варианте идет прямой не зауженый байпас. Отводы или строго горизонтально или с небольшим уклоном. Уклон есть на рисунке: конец верхнего отвода наклонен чуть вниз (2 см на 1 метр), нижнего — задран немного вверх. Диаметр отводов, не меньше диаметра полотенцесушителя.

Подобная схема подключения хороша тем, что на «лесенке» не надо устанавливать воздухоотводчики (ставят заглушки), так как воздух просто уходит в стояк.
При верхней подаче на байпасе можно сделать заужение и/или сместить перемычку по направлению к полотенцесушителю. Это улучшит циркуляцию, сушилка будет греться лучше. Такая схема будет работать только при верхней подаче воды.

При такой схеме тоже можно отводы делать под небольшим наклоном или строго горизонтально.
Вариант бокового подключения сушилки
Допустима схема бокового подсоединения с расположением верхнего отвода ниже верхнего края полотенцесушителя. Но при таком подключении необходимы краны Маевского, через которые придется стравливать воздух после отключения ГВС на ремонт/профилактику. Также может понадобиться периодическое удаление воздуха.

Диагональное подключение
Особого смысла в диагональном подключении большинства полотенцесушителей нет: их эффективность от бокового ничем не отличается, во всяком случае существенного улучшения нет, а расход труб больше, длиннее требуются и штробы, а это трудоемко.
Диагональ нормально работает если подача воды идет сверху. Тогда верхний отвод подключается к дальнему краю «лесенки», а нижнее — к ближнему.

В этом случае тоже можно делать узкий и смещенный байпас, но и без этого все должно работать. При нижней подаче байпас без заужения, ровно по стояку.
Как подключать полотенцесушители сложной формы
В случае подключения полотенцесушителей сложной формы кроме обычных средств приходится учитывать особенности строения каждой конкретной модели. Их надо рассматривать с точки зрения гидродинамики — куда вода будет лучше течь, туда и подавать воду. Например, популярная модель «Элегия» фирмы Сунержа. Это не лестница и не зиг-заг.

Установка полотенцесушителя «Сунержи Элегия» выбрано боковое, так как при любом другом циркуляция будет нарушена.
Модель на рисунке снизу с нижним подключением и сложной конструкцией, имеет три варианта установки. При условии подачи воды сверху, лучше всего будет работать второй, чуть хуже — первый, самый малоэффективный — третий.

При подаче снизу остаются вариант 1 и 3, но только без заужения байпасов — оно будет мешать, а не помогать. Второй вариант исключаем полностью.
Как нельзя делать
Все представленные выше схемы работают стабильно. Как вы заметили, все отводы идут прямо, без изгибов в виде дуги или колец. Это не случайно, во всех неровностях скапливается воздух, Который мешает, а порой, и полностью перекрывает циркуляцию.

На фото установка полотенцесушителя неправильная. Сделаны как минимум, две ошибки:
Такое подключение просто не может работать. Металлопластиковые трубы — отличный материал, но не для подключения полотенцесушителей. Их фитинги имеют сильное заужение просвета, что плохо сказывается на циркуляции. Плюс к этому в петлях скапливается воздух, а также поток по верхней петле, даже при подаче сверху, не пойдет — слишком большое гидравлическое сопротивление воде надо преодолеть.
Нестабильные схемы
Следующие две схемы могут работать, но не всегда. В нижней части полотенцесушителя вода застаивается и, при какой-то разнице высот, не может подняться. Сказать конкретно, когда она будет работать, а когда нет, не может никто. Зависит от давления в стояке, от диаметра труб и конструкции самой сушилки.

При таком подключении даже работающее соединение может вдруг (обычно после остановки) перестать работать. Все просто: изменилось давление, засорились трубы, вода снизу не «продавливается», полотенцесушитель не греет.
Другой вариант нестабильной схемы — с петлей сверху. Опять же, при некоторых условиях работать будет. Но рано или поздно в высшей точке образуется воздушная пробка и перекроет циркуляцию. Беде можно помочь, если установить в самой высокой точке автоматический воздухоотводчик, но при падении давления и он не спасет.

Неправильное подключение сушили
На фото внизу примеры того, как делать не надо. После нескольких лет эксплуатации они перестанут функционировать, система забьется грязью. Особенно после ремонта, ведь вода несет огромное количество грязи, которая оседает в изгибах, в самых низких участках в первую очередь. Требуется переделать и подключить правильно, ну а помочь может только промывка.

Промыть надо и полотенцесушитель и подводы к нему. Для этого сушилку снимаем и моем в ванной, а отводы промываем поочередно подсоединив к освободившемся выходам шланг, второй конец которого вывести в канализацию. Манипулируя кранами пропустить поток горячей воды через один отвод, потом через другой. После промывки все устанавливается на место. Возможно, удастся после этого систему запустить.
Процесс монтажа
Само подсоединение полотенцесушителя к готовым выведенным отводам стандартное для сантехники — подходящие фитинги, лен и упаковочная паста или фум-лента. Для крепления к стене есть кронштейны или специальные зажимы-держатели, в которые труба вдавливается. Подробно процесс показан в видео.
