Газ пока остается самым дешевым видом топлива. Соответственно самое дешевое отопление получается именно на природном газе. Правда установка газового котла связана с определенными сложностями — помещения должны соответствовать нормам противопожарной безопасности.

Нормы установки газового котла
Чтобы при приеме газового котла в работу не возникло неприятностей, необходимо место установки выбрать в соответствии с действующими нормами. Установка газового котла в частном доме (одноквартирном или блокированном) регламентируется СНиП 31-02-2001, а правила установки в многоквартирных домах прописаны в СНиП 2.08.01.
Для частных домов
По нормам газовый котел может быть установлен в вентилируемом помещении, которое находится:
- на первом этаже дома;
- в цокольном или подвальном этаже;
- на чердаке:
- газовые котлы мощностью до 35 кВт (по МДС 41.2-2000 до 60 кВт) можно устанавливать на кухне.
В отношении установки котлов на кухне в настоящее время действуют сразу две нормы. Согласно одного документа размещать можно отопительные приборы мощностью не более 35 кВт, согласно другого — не более 60 кВт. Причем речь только об отопительных приборах. Газовые плиты или другая техника, использующая газ не учитывается.

Как поступать? Необходимо узнать какой нормы придерживаются в вашем ГорГазе. Ведь именно их представители будут принимать оборудование в эксплуатацию. Собственно, все тонкости должен подсказать вам проектировщик, но и знать это желательно — вам ведь нужно будет готовить помещение под установку.
Где ставить
Теперь о том, где и как можно располагать газовое оборудование разной мощности. Речь пойдет о газовых котлах и колонках, мощность их суммируется:
- при мощности до 150 кВт включительно — в отдельном помещении на любом этаже, в том числе в подвальном и цокольном;
- от 151 кВт до 350 кВт включительно — в отдельном помещении первого, подвального или цокольного этажа, а также в отдельном пристроенном помещении.
Более мощные установки в частных домах не используются.
Требования к кухням, на которых устанавливается газовый котел
При размещении на кухне проточного газового водонагревателя или отопительного котла на газу мощностью до 60 кВт, помещение должно отвечать следующим нормам:
- Объем помещения должен быть не менее 15 кубометров, плюс 1 кубометр на каждый киловатт мощности газового котла.
- Высота потолка — не менее 2,5 м.
- Наличие вентиляции:
- вытяжка производительностью не менее трехкратного объема помещения;
- приток такой же, плюс воздух на горение.
- Наличие окна с форточкой. Площадь окна зависит от толщины стекла. При стекле толщиной 3 мм площадь одного стекла (только стекла) не должна быть меньше 0,8 м2, при толщине 4 мм — не менее 1 м2, стекло 5 мм — 1,5 м2.
- В нижней части двери необходимо вентиляционное отверстие (решетка или зазор между дверью и полом) размером не менее 0,025 м2.

Организация отведения продуктов горения в напольном газовом котле
Есть еще одно, которое в нормах не прописано, но которое существует: установка газового котла разрешена только в помещении с дверьми. В свете последних тенденций — убирать перегородки, а вместо дверей делать арки — это может быть проблемой. Без двери разрешение не подпишут. Выход — поставить раздвижные (откатные) или складные двери. Еще один вариант — стеклянные двери. Они не «грузят» интерьер, но их воспринимают именно как двери.
Все эти требования выполнять обязательно. С нарушениями вам просто не подпишут акт приемки.
Требования к отдельным помещениям
Требования к отдельным котельным похожи, но есть и некоторые отличия:
- Высота потолков — не менее 2,5 м;
- Объем и площадь помещения определяются удобством обслуживания, но не должны быть меньше 15 м3.
- Стены, ведущие в смежные помещения, должны иметь предел огнестойкости 0,75 ч и нулевым пределом распространения огня по конструкции (кирпич, бетон, строительные блоки).
- Вытяжка с теми же требованиями: на оттока — трехкратный обмен, на приток в том же объеме, плюс воздух на горение.
- В помещении должно быть окно. Площадь стекла — не менее 0,03 м2 на один кубометр объема.
Если оборудование устанавливается мощностью от 150 кВт, одно из обязательных условий — наличие выхода на улицу. Может быть оборудован второй выход — в подсобное помещение (не жилое). Это может быть кладовая или коридор. Двери должны быть противопожарные.

Обратите внимание, что при расчете окон считается площадь стекла, а не размеры оконного проема. Причем в некоторых случаях требуют наличие хотя бы одного стекла с площадью не менее 0,8 квадратного метра. Если увеличивать окна проблематично, в можно сделать подобное окно в двери (в нормативе не сказано, что оно должно быть в стене).
Как пристраивать котельные
Иногда в доме нет возможности выделить отдельное помещение. В этом случае котельную пристраивают. Нормы по высоте потолков, объему, остеклению и вентиляции остаются такими же, как и для отдельных помещений, только добавляются еще специфические нормы:
- Пристраивается котельная к сплошной стене. До ближайшего окна или двери должно быть не менее метра.
- Стены должны быть негорючими. Это значит, что они должны обеспечивать 0,75 часа до воспламенения (45 минут). Такие материалы — кирпич, бетон, ракушняк, шлакоблок, пено и газо бетон.
- Стены пристройки не должны быть объединены с основным зданием. То есть, фундамент делается отдельным, несвязным, строятся все четыре стены.

Пристройка должна строится на несвязном фундаменте
Учтите, что пристройку необходимо регистрировать. Без официальных документов на ее вам никто газ не проведет. И еще: при ее проектировании закладывайте все нормы без отклонений, иначе не примут. Если установка газового котла планируется в уже имеющемся помещении, на некоторые отклонения могут закрыть глаза или предложить определенную компенсацию (при недостающем объемеили высоте потолков могут попросить увеличить площадь остекления). Для вновь строящихся зданий (и пристроек тоже) таких скидок нет: в них должны быть заложены все нормативы.
Объединенные кухни
Сегодня стало модным иметь квартиры-студии или объединять кухню с гостиной. Получается единое большое пространство, в котором легко реализовать дизайнерские идеи. Но, газовая служба расценивает такое помещение как жилое и ставить газовое оборудование запрещает.

С квартирой-студией решить проблему не удастся, а с объединенной выход есть. Если вы только планируете объединение кухни и гостиной, при оформлении документов полученное помещение назовите кухня-столовая. Это помещение не жилое, так что ограничений не будет. Если бумаги уже оформлены, можно попытаться их переделать или пойти другим путем — установить раздвижную перегородку. Правда, и в этом случае потребуется переделка документов.
Место для установки газового котла
Если говорить конкретно о квартирах, то устанавливают газовые котлы в них большей частью на кухнях. Тут есть все необходимые коммуникации: водопровод, газ, есть окно и вытяжка. Остается только определить подходящее место для котла. Для такой установки используют настенные (навесные) котлы. Они устанавливаются на несколько крюков, закрепленных на стенах (идут обычно в комплекте).
Что касается установки в других помещений квартиры или дома, как правило, ни одно из них не проходит по требованиям. Например, в ванной нет окна с естественным освещением, коридор обычно не подходит по размерам — не хватает допусков от углов или до противоположной стены, обычно нет вентиляции совсем или она в недостаточном объеме. С кладовками та же беда — нет вентиляции и окон, не хватает объема.

При наличии в доме лестницы на второй этаж, часто владельцы хотят поставить котел под лестницей или в этом помещении. По объему оно обычно проходит, а по вентиляции придется ее делать очень мощной — считается объем в двух уровнях и необходимо обеспечить его трехкратный обмен. Для этого потребуется несколько труб (три и больше) очень большого сечения (не менее 200 мм).
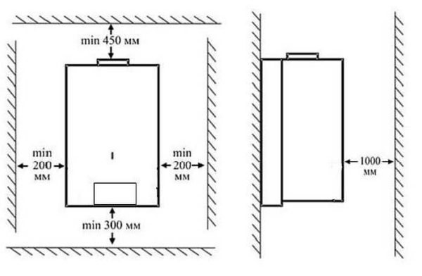
После того, как определились с помещение под установку газового котла, остается найти для него место. Оно выбирается исходя из типа котла (настенный или напольный) и требований производителя. В техпаспорте обычно подробно прописываются расстояния от стены справа/слева, высота установки относительно пола и потолка, а также расстояние от фронтальной поверхности до противоположной стены. У разных производителей они могут отличаться, так что стоит внимательно изучить руководство.
Нормы установки по СНиПу
На случай отсутствия таких рекомендаций в паспорте оборудования, установка газового котла может проводится по рекомендациям СНиПа 42-101-2003 п 6,23. Там сказано:
- Устанавливаться газовый котлы могут на несгораемые стены на расстоянии не менее 2 см от нее.
- Если стена трудносгораемая или сгораемая (деревянные, каркасные и т.п.) она должна быть защищена несгораемым материалом. Это может быть трех миллиметровый лист асбеста, поверх которого закреплен лист металла. Также ка защита рассматривается штукатурка слоем не менее 3 см. В этом случае навешивать котел надо на расстоянии 3 см. Размеры несгораемого материала должны превышать размеры котла на 10 см с боков и снизу, а сверху должны быть больше на 70 см.
Относительно листа асбеста могут возникнуть вопросы: сегодня он признан опасным для здоровья материалом. Заменить его можно слоем картона из минеральной ваты. И еще учтите, что несгораемым основанием считается также и керамическая плитка, пусть даже она уложена на деревянные стены: слой клея и керамика как раз дают требуемую огнестойкость.

Также регламентируется установка газового котла относительно боковых стен. Если стена негорючая — расстояние не может быть меньше 10 см. Для горючих и трудногорючих это расстояние — 25 см (без дополнительной защиты).
Если устанавливается напольный газовый котел, основание должно быть негорючим. На деревянный пол делают негорючую подставку. Она должна обеспечивать предел огнестойкости в пределах 0,75 ч (45 минут). Это или кирпичи, уложенные на ложок (в 1/4 кирпича), или толстая керамическая напольная плитка, которую кладут поверх асбестового листа, закрепленного на металлическом листе. Размеры негорючего снования — на 10 см больше габаритов устанавливаемого котла.
