Наше представление о «хорошем ремонте в ванной и туалете» меняются очень стремительно. Еще несколкьо лет назад выясняли какой из унитазов лучше — компакт или с отдельным бачком, сегодня — устанавливают подвесные унитазы и другую сантехнику и спорят, какая инсталляция для унитаза лучше.
Что такое инсталляция для унитаза и какие они бывают
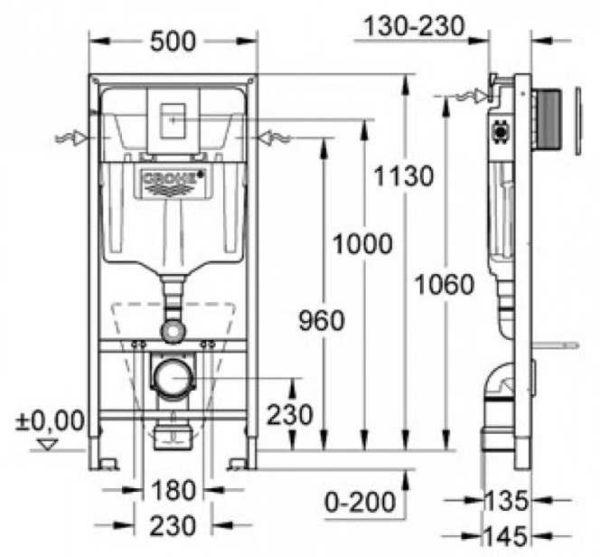
В последнее время все чаще устанавливают подвесные унитазы и биде. Конструкция, на которой они смонтированы и называется инсталляцией. Кроме веса сантехнической чаши, инсталляция удерживает также канализационные и водопроводные вводы, а некоторые модели еще и бачок для воды. Бачок сделан из полимера, доступ к нему ограничен, так как он закрывается потом плиткой или другой наружной отделкой. После монтажа возможна только регулировка с доступом через кнопку слива. Именно по этой причине лучше выбирать сантехнику этого типа хорошего качества — при проблемах придется все переделывать — сбивать отделку, менять бачок, потом все по-новой делать, а это далеко не дешево.
Есть инсталляции двух видов: блочные и рамные. Блочные иначе можно назвать приставными — они крепятся к капитальной стене (на фото ниже). То есть для их монтажа требуется стена с достаточной несущей способностью.

Рамные инсталляции крепиться могут к полу и к стене, могут иметь только две точки крепления к полу. Отличаются тем, что не требуют наличия надежной стены — рама у них более массивная и обязательно упирается в пол. Рамная инсталляция для унитаза может устанавливаться даже в гипсокартонной стене.

Независимо от типа процесс монтажа инсталляции для унитаза — дело грязное, так что работы надо начинать до финишной отделки стен в ванной или туалете. Рамная инсталляция для унитаза устанавливается вообще на стадии создания перегородки или монтируется в подготовленную нишу.
На что обратить внимание при выборе
Инсталляции под унитаз продаются как в комплекте с чашей, так и отдельно. Проще, естественно, купить все в комплекте. Тогда все размеры точно будут совпадать. Если чаша уже имеется, необходимо будет смотреть на габариты рамы и расстояние между крепежными элементами — оно должно совпадать с монтажными отверстиями в унитазе.
Очень полезно, если рама имеет возможность регулировки по высоте — можно выставить чашу на нужный именно вам уровень. Обратите внимание также на тип окраски. Лучший вариант — порошковая окраска. Она надежна, создает жесткую долговечную пленку, которая хорошо держится на металле. Все остальные типы краски хуже держаться.

При выборе инсталляции для унитаза стоит обратить внимание на комплектацию. Обычно вместе с рамой идут элементы крепления — для подвески унитаза, арматура для фиксации канализационных и водопроводных труб. Некоторые фирмы в базовую комплектацию также включают бачок и кнопку слива. Слив, кстати, может быть двухрежимным. Он более экономный, так как при нажатии большой кнопки сливается 6-9 литров, малой — всего 3-4 литра воды. Хорошо если слив регулируемый — объем спускаемой воды можно подстроить под конкретную форму унитаза.
Какой тип лучше?
Какой из типов инсталляций под унитаз и биде лучше? Более надежной считается рамная конструкция — в ней обычно используются более толстый металл, но и стоит она дороже. В любом случае, при выборе рамы для подвесного унитаза обращайте внимание на прочность конструкции — она не должна шататься, ее элементы не должны прогибаться. Осмотрите сварные швы и качество окраски — не должно быть даже небольших огрехов.
И немного о производителях. Лучшими считаются инсталляции для унитаза произведенные в Германии и Италии. Но их сантехника дорогая. Не хуже качеством оборудование для ванных комнат и туалетов делают в Чехии и Болгарии, а ценовой диапазон на их изделия — средний. Наиболее дешевые инсталляции и подвесные унитазы — китайские, но с ними связываться рискованно — могут работать нормально, а могут быстро выйти из строя.
Установка инсталляции унитаза
Монтаж начинается после того, как выровняли пол. Если выбран блочный тип инсталляции, то выровнены должны быть и стены. Как уже говорили, монтаж блочной инсталляции возможен только на стену с хорошей несущей способностью. Обычно это несущие стены, так как обычные перегородки могут обвалиться.
Прежде всего необходимо определиться с местом установки унитаза. В зависимости от типа инсталляции понадобиться крепить ее к полу или к стене. К предполагаемому месту установки необходимо подвести канализационные трубы и воду. Патрубки этих систем должны располагаться в непосредственной близости от выбранного места монтажа.
Далее речь пойдет об установке инсталляции для сантехники рамного типа.
Закрепляем раму к полу
Потом раму выставляем на то место, где она должна стоять, проверяем вертикальность, горизонтальность. Затем, карандашом или маркером, делаем отметки в местах крепления — в раме есть отверстия.

Отодвинув раму по отметкам сверлим отверстия — под размер крепежных элементов. При установке в бетон используют обычно дюбеля со шляпками под шестигранный ключ. После того как отверстия сделаны, раму ставят на место, вставляют и закручивают дюбеля.
Выставляем требуемую высоту установки чаши унитаза
Большинство рам инсталляции для унитаза имеют регулируемую высоту. При выборе высота считается от уровня чистового пола — фактически от уровня уложенного напольного покрытия. Если покрытия пока нет, его толщину надо прибавить к требуемой высоте.

Для выставления высоты ножки рамы сделаны регулируемыми. Они фиксируются прижимными болтами. Для регулировки ослабляем эти болты (находятся в нижней части рамы на ножках), выставляем нужную высоту, проверяем горизонтальность верхней планки, после чего снова затягиваем болты.
Крепим к стене
Для крепления к стене в комплекте идут специальные регулируемые болты. Одним концом они крепятся к верхним углам рамы, вторым фиксируются на стене (дюбелями подходящего типа).

После чего инсталляция для унитаза выставляется строго вертикально. К боковым стойкам прикладывают строительный уровень, вращая гайку на крепеже изменяют положение рамы относительно стены.

Процедура важная, но несложная. Выставляем все с максимальной точностью, проверяем несколько раз во всех плоскостях. Все должно стоять идеально ровно. После регулировки подвижный язычок на крепеже (на фото он под пальцем) вдавливаем. Он зажимает винт, рама жестко закреплена.

У фирмы Грох есть еще дополнительный фиксатор — пластиковая скоба, которая зажимает резьбу. Ее устанавливаем возле флажка (на фото).
Подключение канализации и воды
Следующий этап — соединение патрубка, закрепленного на раме, с канализационным выводом. В некоторых комплектах есть заводские колена, если их нет придется искать подходящее или ставить гофрированную сантехническую трубу.

Другой вариант — на раме имеется пластиковый хомут, в который вставляется канализационный патрубок (на фото выше). В этом случае четко оговаривается сечение труб.
Холодная вода подключается к патрубку на бачке. Подводить можно любой трубой, но важно сделать соединение надежным. Потому использовать металлопластиковые трубы с пресс-фитингами не рекомендуется — они требуют периодической подтяжки, что в данном случае сделать проблематично. То есть, остается не так много вариантов — полипропилен, медная труба, полиэтиленовые трубы, соединенные пайкой.

Переходник и входа в бачок соединяем гибким шлангом. Его также выбирайте тщательно, лучше в оплетке из хорошей нержавейки. В идеале — купите фирменный шланг.
Отделочные работы
Так как любая инсталляция для унитаза предполагает наличие отделки, весь процесс монтажа делится на две части — до отделки и после. Первая закончена, далее следует отделка.
Обычно установленную раму зашивают гипсокартоном. По инструкции требуется установить два листа. Сначала все габариты переносят на стену, по нанесенному контуру монтируют профиль, а к нему уже крепится листы гипсокартона.

Перед началом работ необходимо установить на раму коробку под кнопку. На период отделочных работ она будет защищать внутренность от попадания грязи. На листах необходимо вырезать несколько отверстий: под кнопку, вывод канализации и впуск воды от бачка, две шпильки для навешивания чаши унитаза. Для этого вырезанный по размерам лист ставят на место, затем карандашом обводят все необходимые элементы. По начерченному контуру вырезают отверстия. Подготовив два листа, их устанавливают и крепят к смонтированному ранее каркасу. После установки ГКЛ, укладывается на клей плитка.
Установка кнопки и навешивание чаши
После отделки коробка под кнопку обрезается — ее края должны быть на одном уровне с плиткой. Отрезанная крышка обнажает два отверстия под болты. Именно на них будет держаться кнопка для слива.

Перед монтажом к кнопке подключается шланг (если слив пневматический) или трос (если слив механический). Затем она устанавливается на место и затягивается двумя болтами (по углам в диагональ или как на фото друг напротив друга).

Установка чаши начинается с монтажа прокладки. Ее насаживают на шпильки. Отверстия под канализацию и спуск воды по кругу обрабатываем сантехническим силиконом.

Далее патрубки устанавливаем в унитаз и всю конструкцию навешиваем на шпильки. На торчащие шпильки надеваем резиновые прокладки и затягиваем болты.

Можно считать, что подвесной унитаз установлен. Остались последние штрихи — срезаем излишки резиновой подкладки. Делать это можно острым ножом для бумаги. Просто проводим по контуру чаши, срезая лишнее.

Для лучшей герметизации стык промазывают силиконом. Уложив полоску, ее сразу ровняют, излишки тут же стирают. Ровнять лучше чем-то гладким и округлым, например, ручкой чайной ложки. На этом все, можно проверять работу.
Видео по установке инсталляций унитаза разных фирм
- Сантехника
