Часто приобретенный дачный участок — это часть поля с метровыми сорняками. Для борьбы с «дикой флорой» необходимо какое-то пристанище — отдохнуть, набраться сил для нового этапа борьбы. Строить домик в чистом поле — не самая разумная затея, вот и задумываются многие о временном жилище. Если вы любите комфорт даже в полевых условиях, дачная двухкомнатная бытовка с туалетом и душем — один из лучших вариантов.
Материалы
Хоть и много на рынке строительных материалов, при строительстве бытовок используют только самые легкие, практичные и недорогие. Дачные бытовки многими первоначально рассматриваются как временный вариант — в планах строительство домика. Но строение часто настолько прочно «прирастает», что из него либо делают гостевой домик, либо летнюю кухню, либо используют еще каким-то образом. Так что, даже если в решили, что это — только временный вариант, выбирайте материалы и размеры исходя из большего удобства.

Древесина
Чаще всего бытовки в наше стране строят из дерева. В них не так холодно в зимнее время, и не так жарко в летнее. В деревянных строениях естественным образом поддерживается требуемый уровень влажности. Потому в деревянных бытовках чувствуем себя комфортнее.
Достоинство деревянных бытовок — их малая масса. Стоят такие сооружения даже на грузовых шинах или сложенных друг на друга строительных блоках. И нормально себя чувствуют. В общем и целом — деревянная дачная бытовка с туалетом и душем — это хороший вариант.

Но, чтобы смотрелось строение нормально, за древесиной требуется регулярный уход. Необходимо возобновлять защитно-декоративное покрытие. Что это будет — краска, лак, масло для древесины — выбирать вам, но обновлять покрытие надо. Частота — раз в год, раз в два-три года. Зависит это от типа покрытия. Масла обновляются обычно раз в два-три года, краска и лак — раз год-два. Такая необходимость далеко не радует. Во-первых, расходы на лак/краску, во-вторых, время на удаление старого покрытия и нанесение нового (удалять масла не надо, в этом случае просто обновляется покрытие).
Существенный недостаток древесины — его пожароопасность. И с этим бороться сложно. Конечно, до постройки материал пропитывают антипиренами, но если будет гореть, то и это не спасет.
Металл
Металлические бытовки пожаробезопасны, но вот жить в них некомфортно. Во-первых нужна система вентиляции. Проветривать бытовку открывая двери-окна получается далеко не всегда. Потому о вентиляции надо позаботиться. Сделать ее в таком небольшом строении несложно, но это дополнительные хлопоты и затраты.

Кроме того, с понижением температуры, в металлической бытовке становится очень уж холодно, а натопить ее сложно — металл быстро отлает тепло в пространство. Зато летом в таком сооружении слишком жарко. Солнце раскаляет поверхность и духота стоит неимоверная. Даже если на улице еще не жарко. Частично спасти ситуацию можно натянув тент, но решение это поможет только частично. Солнце все равно будет греть ее, пусть и в меньшей степени.
Еще один недостаток таких бытовок для дачи — большая масса. На шлакоблоки ее уже не поставишь — нужна более солидная основа, способная выдержать массу металла и обстановки внутри. К тому же ее также надо красить. Потому что без краски металл ржавеет, и потому что внешний вид тоже важен.
Другие варианты
Древесина и металл — далеко не единственные материалы, из которых можно сделать дачную бытовку. Экземпляры из других материалов в продаже встречаются кране редко, но построить их своими руками можно за несколько дней. Если у вас есть опыт, труда вам это не составит, а если опыта нет, это он и будет. Хорошая тренировка, которая в дальнейшем пригодится. Если дом строить своими руками не собираетесь, то на участке придется то беседку ставить, то делать скамейку, детский уголок или что-то другое. Да и за строителями доделывать огрехи придется самому. Так что самостоятельное строительство бытовки — хороший старт.
Итак, вот из чего еще можно сделать бытовку для дачи:
- Построить по каркасной технологии. Стойки могут быть металлическими или деревянными, обшивка — влагостойкий листовой материал (ОСП, влагостойкая фанера). Утеплитель — обычно минеральная вата, но может быть пенополистирол.

Каркас готов - Сандвич панели. Этот материал очень удобен для возведения утепленных хозпостроек. Стены сразу утепленные и с отделкой. Минус — это два слоя металла с утеплителем внутри.
Из этих материалов получаются быстровозводимые сооружения. Более комфортным будет существование в каркаснике. Если бытовку планируете использовать на долговременной основе, то это — лучший вариант. Если же бытовка после строительства дома переквалифицируется в подсобное помещение, ваш выбор — сэндвич панели.
Дачная двухкомнатная бытовка с туалетом и душем: размеры и планировка
Самый оптимальный вариант для садового участка или дачи — дачная двухкомнатная бытовка с туалетом и душем. По сути, это уже небольшой дачный домик. И по функционалу, и по площади, и по удобству эксплуатации. И вот в чем штука, если вы закажете домик такой же площади, стоить это будет вам на 25-30% дороже чем бытовка. Вот такие интересные особенности.

Размеры: какие более удобны
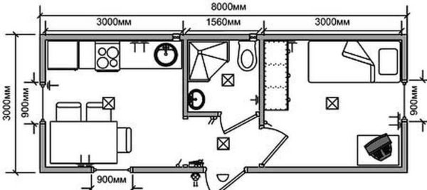
Нормальная ширина бытовки — 3-3,5 метра. При такой ширине комнаты получаются функциональными и удобными. Даже если длина бытовки 6 метров, можно выгородить в средней части туалет с душем, а по бокам расположить комнаты.

Бытовка с душем и туалетом удобна — все необходимые помещения в под оной крышей. Особенно это ценишь во время дождя, ранней весной или осенью. Но если длина вагончика всего 6 метров, комнаты получаются узкие — по два метра или около того.
Более просторно будет в комнатах, если длина бытовки будет 8 метров. Ширину при этом можно не увеличивать. Тогда комнаты получатся уже примерно по 9 квадратов, чего уже достаточно для комфортной жизни. То есть Дачная двухкомнатная бытовка с туалетом и душем в идеале должна иметь размер 3*8 метра.
Оптимальные размеры: исходит из экономической целесообразности
Итак, мы определились, что минимальные размеры дачной двухкомнатной бытовки с туалетом и душем — 3*6 метров, удобные 3*8 метров. Но есть некоторые нюансы.
Смотрите, в «чистом» виде, с учетом толщины стен внутри помещения будут около 2,5-2,6 метров в ширину и 2,8-2,6 в длину при восьмиметровой длине вагончика. Согласитесь, этого маловато. В такую комнату поставить можно только кровать. Между стенкой и ее спинкой останется совсем узкий проход, который никак не использовать. Перед кроватью (полуторной) останется тоже совсем небольшой участок, в который можно втиснуть небольшую тумбочку/комод и стул.

Так что если есть возможность, наружную ширину желательно увеличить до 3,5 метров. С точки зрения эксплуатации это удобно, а вот экономически невыгодно. Дело не только в увеличении количества требуемых материалов. Оно увеличится, но не очень значительно. Дело в большом количестве обрезков, которые при этом получатся. Стандартная длина досок и бруса — 6 метров. Так что оптимальный размер 3 на 6 метра. Но, как выяснили, он не очень удобный. А при длине бытовки 8 метров, остаются куски по 4 метра. Так что второй оптимальный размер, который должна иметь дачная двухкомнатная бытовка с туалетом и душем — 8*4 метра. В этом случае количество обрезков будет очень незначительным. Так что расходы не слишком возрастут.
Если такой вариант вам кажется слишком большим, можно пойти другим путем — покупать часть стройматериалов маломеров — по 2 метра или теми кусками, которые вам нужны. Они есть на каждой лесопилке и так как являются пересортицей, стоят за куб значительно меньше. Так что увеличение площади вам может еще и поможет снизить затраты на строительные материалы.

У широких бытовок есть только один недостаток: их перевозить можно только с разрешения ГАИ:
- Если ширина до 2,55 метров, разрешения не нужно.
- От 2,55 м до 3,50 м — письменное разрешение.
- Больше 3,55 метров — с сопровождением машины ГАИ.
Вас это касаться может только если вы собираетесь ее куда-то транспортировать или собрались купить готовую. Если вы ее будете строить или закажете на фирме, вас это не должно волновать.
Вариант планировки двухкомнатных бытовок
Один из популярных вариантов использования двухкомнатной бытовки для дачи — в одной комнате сделать кухню и столовую. Причем делают полуперегородку, которая номинально отгораживает кухню и жилую комнату. Хорошие двери и, возможно, утепленная перегородка нужны там, где обитаемые помещения отделяются от тамбура и душа с туалетом. Чуть позже станет понятно зачем.

Если планируется использование бытовки весной или осенью, и проживать будут 1-2 человека, лучшая планировка — если вход находится не посередине (так называемые распашонки), а с одного из краев, как на на фото ниже.
Чем такая планировка лучше? Так помещения легче отопить. Весной и осенью вы без подогрева не обойтись. В распашонке топить одной печкой можно только одну комнату. Держать открытыми двери — не самая лучшая идея, так как тепло будет уходить, ведь тамбур с открытыми дверьми свое назначение не выполняет. Вот и получается, что обитаемой будет только одна из комнат.

Но есть еще варианты:
- в холодное время использовать одну из комнат как холодильник, кладовку, склад;
- поставить два источника тепла -по одному в каждой из комнат;
- сделать выносной тамбур.
Преимущества приведенной выше планировки в том, что одной печкой можно отопить почти всю бытовку. Холодным остается только санузел. Но маленький объем проще обогреть. Перед принятием душа можно ненадолго включать переносной источник тепла, который обогреет помещение. А если воду греть при помощи дровяного титана, то он и будет отапливать помещение.
Бытовки с верандой
Очень удобно, если перед бытовкой есть чистая крытая площадка — крытая веранда. Тут можно работать или отдыхать пока идет дождик, тут можно поставить столик для приема пищи. Это действительно очень удобно. Так что лучше планировать все сразу и фундамент делать под веранду одновременно с домом. Веранду можно пристроить и позже, но это больше выйдет по затратам. Фундамент будет отдельным, несвязанным, надо будет думать, как сделать примыкание крыши.

Веранду сразу лучше рассматривать на всю длину — от края до края с южной или восточной стороны. Еще лучше — сделать ее в виде буквы «Г», охватив две примыкающие стороны. Поверьте, места много не бывает. К стати, часть веранды можно будет зашить, поставить двери и использовать как кладовку/гардеробную. Площади внутри бытовки совсем небольшие, найти место под хранение вещей проблематично. А так вы и место внутри не расходуете, и вещи/инструменты доступны.
Часть веранды потом можно остеклит и вынести сюда кухню, сделать столовую. Именно так и происходит со временем. Это действительно удобно, и, обживая свою дачную бытовку, вы будете постепенно увеличивать, пристраивать, достраивать.
Выбор фундамента и подготовка участка
Выбор фундамента, конечно, зависит от типа грунтов и глубины промерзания почв в конкретном регионе. Но бытовки — даже садовые и дачные — считаются временными постройками. Пусть «временно» они стоят и десять и больше лет… Потому тут подход не такой, как при выборе фундамента под дом. Один из основных критериев — малые затраты. Чем меньше, тем лучше. Вот с этой точки зрения и рассмотрим этот вопрос.

Фундамент под бытовку
Как уже говорили, бытовки стоят даже на шинах и сложенных друг на друга строительных блоках или столбиках из кирпичей. Они действительно стоят, так как имеют небольшую массу, и, за счет подвижности конструкции каркаса, выдерживают легкий перекос (порой выдерживают и заметный перекос). Но, если делать будете крыльцо (обязательно на несвязном фундаменте), будьте готовы к тому, что каждую весну придется что-то делать — оно то отстает, то поднимается, то опускается (по отношению к домику),

Если вы любите «основательно и на века», делайте сразу винтовой или свайный фундамент. Для легкой постройки это идеальный стабильный вариант. Не подходит он только для плывунов или скалистых грунтов. Но на скалистых грунтах пойдут и камни, а с плывунами разговор вообще отдельный — тут только плита без каких-либо вариантов.

Теперь по количеству опор. Дачная двухкомнатная бытовка с туалетом и душем 3*6 метров может стоять на 4 опорах по углам. Для более длинных — 7-8 метров — нужны еще и опоры посередине длинной стороны. Итого — 6 штук. Ставить дополнительные не имеет смысла — несущей способности этих более чем достаточно.
Подготовка участка
Про этот этап часто забывают или считают несущественным. Зря. Затраты не такие большие, а польза очевидна. Что надо сделать:
- Снять весь слой плодородной почвы, вывезти его хоть на высокие грядки, хоть сложить где-то для дальнейшего использования.
- Удалить растительные остатки, камни, корни.
- Выровнять, утрамбовать.
- Насыпать слой щебня, утрамбовать.
- Насыпать слой песка, утрамбовать.
- Дальше можно ставить опоры под бытовку (шины, строительные блоки, камни).

Подготовку участка лучше не пропускать
Зачем все это делать? Чтобы под бытовкой не образовалось болото и не начали гнить растительные и животные остатки, которые содержатся в плодородном слое. Явление очень неприятное и, после того, как бытовка поставлена и обжита, трудно устранимое. Лучше устранить саму возможность, чем бороться с последствиями.
Второй плюс установки бытовки на подготовленную площадку — меньше возможность того, что при весеннем пучении ее «поведет». Эта возможность не будет вас беспокоить разве что если вы установили бытовку на сваи (винтовые или заливные). Все другие «облегченные» варианты подвержены этому явлению.
Обустройство бытовки внутри
Очень важный момент — чем отделать бытовку внутри. Хочется чтобы было красиво, практично и недорого. Сразу стоит сказать, что найти подходящий вариант сложно. Каким-то из требование приходится обычно пренебрегать. Варианты вот какие:
- Оббить внутри доской или вагонкой. Красиво и практично, но, увы, недешево.

Внутреннее обустройство бытовки — лучше древесины материала нет - Обшить листовым материалом, поверху оклеить обоями. Дешево и красиво (может быть), но непрактично. Обои быстро пачкаются, приходится часто переклеивать. И сразу скажем, что в бытовке, даже при жесточайшей экономии, не используйте в качестве обшивки ДВП. Бытовка вряд ли у вас отапливается постоянно, а от влаги ДВП ведет волнами, и первоначальную форму материал уже не принимает никогда. Лучше уж влагостойкая фанера, пусть и не самого лучшего качества. Ее дефекты можно заделать шпаклевкой — под обоями ничего видно не будет. Еще один вариант — влагостойкий гипсокартон или ГВЛ.
Другие варианты отделки дачных или садовых бытовок почти не используются.
