Подарить или сделать для дочери дом для ее кукол — это еще только начало. Далее этот дом придется обставить. Это — куча игрушечной мебели, техники, аксессуаров. О том, как сделать мебель для кукол своими руками будет рассказано в этой статье.
Как определиться с размерами
Куклы, их домики и обстановка — это уменьшенные копии нас и наших жилищ. И самый надежный способ сделать кукольную мебель своими руками и не ошибиться — измерить реальные предметы, уменьшить их в несколько раз, после чего работать с полученными значениями.

На сколько уменьшать реальные размеры зависит от того, насколько мала или велика кукла, ведь они есть от 7 см до 60 см или даже еще выше. Соответственно, мебель для них нужна разных размеров. Чтобы определить число, на которое следует делить реальные размеры, средний рост человека в сантиметрах (170 см) делим на высоту куклы. Получим какое-то число. Вот на него и надо будет делить размеры реальной мебели.
Например, высота куклы 15 см. Вычисляем: 170 см / 15 см = 11,3. Вот на это число и делим все параметры «человеческой» мебели. Стоит еще сказать, что именно 14-15 см — самый популярный размер среди кукольного населения. Потому большая часть готовой мебели сделана в соотношении 1:12. Можно и нам воспользоваться имеющимися габаритами хотя-бы для того чтобы можно было ориентироваться с масштабах требуемых деталей и количестве материалов.

Итак, самые распространенные размеры кукол:
- кукла-мужчина 150 мм;
- кукла-женщина — 140 мм;
- кукла-ребенок — 75-100 мм;
- игрушечный младенец — 65-75 мм.
Если нужна мебель для кукол подобных размеров, ее параметры будут такими:
- Кровать:
- двуспальная — 160*130 мм;
- односпальная — 160*75 мм;

Размеры обстановки зависят от роста обитателей
- Стул — высота со спинкой 75 мм, высота сиденья — 40 мм;
- Шкаф не ниже 165 мм;
- Диван, кресло — высота сиденья 40 мм, спинки, подлокотники могут быть разными;
- Стол рабочий, обеденный — высота 65 мм, форма и ширина/длина могут быть различными.
Если имеющиеся у вас игрушки больше/меньше незначительно, можно размеры не корректировать. При большой разнице придется увеличивать или уменьшать (а можно посчитать самостоятельно).
Кукольная мебель из спичечных коробков
Проще всего делать мебель для кукол своими руками из обычных спичечных коробков. Их склеивают при помощи клея ПВА, создавая определенные конструкции, затем обклеивают бумагой или тканью, самоклеящейся пленкой и т.д. В качестве ножек можно использовать деревянные бусины, ручки для ящичков делать из небольших пуговок на ножках или из длинненьких бусинок.

Из спичечных коробков можно сделать стулья, стол, комод, кровать, прикроватную тумбочку. Другое дело, что мебель получается для совсем маленьких куколок, высотой не более 10 см. Хотя, можно использовать большее количество коробков, склеивая их в блоки, а из этих блоков создавать мебель для кукол высотой около 15 см. Тоже вариант, но работать с другими материалами не намного сложнее, а они более пластичны и позволяют создавать изделия более элегантных форм.

Игрушечный туалетный столик из спичечных коробков

Кукольный письменный стол своими руками

Обеденный стол и стулья из спичечных коробков для кукольного домика

Как склеивать коробки

Несколько оформительских приемов для отделки самодельного игрушечного комодика из спичечных коробков
Это может быть вашим первым опытом в деле изготовления кукольной мебели. Позже можно будет взяться за что-то более серьезное.
Мебель для кукольного домика из картона
Испробовать свои силы в изготовлении мебели для кукол можно используя картон. Материал недорогой, доступный, можно будет пробовать и ошибаться, переделывать. Картон соединят обычно при помощи клея ПВА, можно использовать клеевой пистолет или любой универсальный клей, который может клеить картон, ткань, древесину. Просто делая мебель для кукол своими руками из картона, вы еще будете использовать и эти материалы. Если говорить об удобстве, то предпочтительнее клеевой пистолет — клеит быстро, работать удобно, соединение надежное.

Чтобы сделать мебель для кукол, можно использовать обычный упаковочный картон. Он дешев, но мебель из него получается очень нежная. Вряд ли ребенку ее надолго хватит. Но, в качестве «первого опыта», это хороший вариант. Более надежными получаются изделия из картона для скрапбукинга. Он боле плотный, однородный, имеет разную толщину (от 2 мм и больше), может быть с фактурной поверхностью, выдавленными однотонными узорами, рисунком с одной или с двух сторон. Недостаток такого картона — его надо покупать, и некоторые виды такого картона не слишком дешевы.
Картонная кровать для куклы
Эта кровать для куклы из картона предназначена для большой куклы — до 50 см высоты. При необходимости все указанные размеры можно уменьшить.

Этот вариант можно сделать буквально за 10-20 минут. Тут не нужен клей или другие фиксаторы. Детали держатся за счет пазов, вырезанных в картоне. Ширина паза равна толщине картона, длина прорезей и размеры заготовок указаны на схеме.

Зелеными и желтыми точками обозначены совмещаемые разрезы. Их вставляют один в другой, на чем сборка заканчивается. Если вам подобная модель нравится, ее можно сделать и из фанеры.
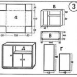
Схемы для изготовления картонной кукольной мебели
В основном, мебель для кукол из картона клеится. Сделать из этого материала что-то ажурное или очень сложное вряд ли получится, но изготовление простых моделей не займет много времени. Имея схему с размерами, можно даже обойтись без пояснений. Все и так ясно.

Схема кресла для кукол

Такие модели можно делать «на глаз». Без «обивки» выглядят они неприглядно, зато после вполне прилично

Кровать сделать совсем несложно, а вот со шкафчиками для кухни придется немного помудрить

Тумбочка с дверками и открытая полка — схема одна, разное исполнение

Другая модель тумбочки для изготовления из картона или фанеры

Игрушечный стол для кукол своими руками по этой схеме сделать не проблема

Торшер для кукол из картона
Схемы мебели для кукол можно использовать не только для изготовления из картона. Их можно перенести на фанеру и вырезать при помощи лобзика.
Шкаф для кукол из подручных материалов
Игрушечный шкаф можно сделать из фанеры, покрасить или обклеить оберточной бумагой или самоклеящейся пленкой. Тут, наверное, и вопросов не возникнет — все понятно, а если есть вопросы, можно подсмотреть их решение в «натуральном» шкафу. Но можно его сделать и из совсем недорогих материалов. Мебель для кукол своими руками тем и хороша, что себестоимость ее очень невелика.
Из картонной коробки
Основная задача — найти коробку из плотного картона подходящего размера. Мало того, проще будет работать, если она будет упаковочной — с отгибающимися краями. Такая отгибающаяся часть — уже готовая дверка. Останется ее только доделать — повесить зеркало, прикрепить ручку и т.д.

Что надо для работы
Для работы понадобится хороший скотч, лучше — на бумажной основе, та как к нему потом проще клеить отделку. Если есть клеевой пистолет или строительный (подойдет и большой канцелярский) степлер со скобами — тоже неплохо. Если кроме картона и бумаги будете использовать еще и другие материалы, клей лучше найти универсальный, который клеит бумагу, картон, ткань, пластик. Еще нужны будут ножницы и канцелярский нож, линейка.

Если найденная коробка слишком большая, ее можно уменьшить, отрезав лишнее. Чтобы сгибы были ровными, берем линейку. прикладываем к месту будущего сгиба, несколько раз хорошо проходим вдоль линейки тупым твердым предметом (черешком ложки или вилки). После этого, сгибаться картон будет легко.
Заполнение для игрушечного шкафа
Из обрезков или из другой коробки вырезаем полки. Они должны быть немного — на 5-8 мм — длиннее и шире внутреннего пространства шкафа. Излишки загибаем так, чтобы со всех сторон образовались бортики. В углах образуются складки, их аккуратно срезаем. Одну из частей загибаем на 180° и приклеиваем к самой полке. Этой стороной полочка будет «смотреть в мир». Три остальные части загибаем под углом 90°, промазываем клеем и полки вклеиваем в шкаф. На фото справа видно, как приклеены полки. Но, чтобы места вклеивания не бросались в глаза, бортики лучше завернуть вниз.

Кроме полочек можно сделать еще и перекладину для вешалок. Ее можно сделать из бамбуковых шпажек, например, можно попробовать использовать трубочку для соков, проволочку и т.д. Вешалки тоже можно скрутить из цветной проволоки или вырезать из пакетиков от сока, из пластиковых бутылок и т.д.
Отделка — процесс творческий
Далее дело за отделкой. Можно картон покрасить акварельными или акриловыми (лучше) красками, поклеить оберточной бумагой, тканью, фетром. Можно имитировать зеркальную поверхность — обклеить фольгой (пищевой, например). Если хотите сделать «пластиковую» поверхность, ищите бутылки из-под воды нужного цвета, отрезайте горлышко и днище, а «тело» используйте как отделочный материал.

Ручки можно сделать из проволоки, из бусинок, длинного бисера. Для игрушечных шкафов большего размера можно найти пуговички или кнопки. Всю эту «красоту» клеим уже после того, как «обшили» шкаф.
Платяной кукольный шкаф из газет
Нужны будут стары газет, клей ПВА с кисточкой, клеевой пистолет, пару кусочков проволоки или нитки, оберточная бумага для отделки шкафа или краски.
Из газет скручиваем плотные трубочки, промазываем их по краю ПВА и оставляем до высыхания. Затем трубочки можно склеивать между собой. Для этой операции лучше подойдет клеевой пистолет. Есть два пути: сначала собрать большие блоки, затем их нарезать на фрагменты нужной длины или сразу нарезать трубочки нужной длины и склеивать сразу заготовки по размерам. Второй путь более кропотливый, но отходов меньше.

Готовые стенки шкафа надо скрепить между собой. Чтобы жестко зафиксировать угол в 90° лучше использовать тоненькую проволоку. Сначала промазать стыки клеем, затем проволокой притянуть стенки одну к другой. Если проволоки мешают, их можно будет вынуть после высыхания клея.

По той же технологии приклеиваются дно, верхушка, полочки. Дверки надо будет сделать немного по-другому. Чтобы они открывались, из скотча вырезают две полосы шириной около 1,5 см. По краю дверки проклеивают скотч так, чтобы чуть больше половины висело в воздухе. Этим свободным скотчем приклеиваем дверку к стенке, но так, чтобы между стенкой и дверкой был зазор в 2-3 мм (там просто скотч). Это даст возможность закрывать дверки. Приклеенную дверку фиксируем с другой стороны второй полосой скотча.

Второй способ закрепить дверки — на проволоку. Только в этот раз она должна быть жесткой и достаточно толстой. Отрезаем кусок, который на 2 см длиннее высоты шкафа. Сразу на проволоке с одной стороны делаем петельку, используя 1 см. Петельку загибаем под углом 90° к проволоке. Делаем в днище и крыше дырки, через днище пропускаем проволоку, петелька остается внизу. На проволоку надеваем дверку, используя крайнюю трубочку вместо шарниров. Слегка изгибая проволоку, продеваем ее в отверстие в крыше шкафа, загибаем излишек, фиксируя дверку. Ту же операцию повторяем с другой дверкой. Обратите внимание, крепить дверку на скотч надо до отделки шкафа, а на проволоку — можно и после.

Есть еще некоторые мелочи, о которых надо сказать пару слов. Ножки и ручки для шкафа также можно сделать из бумажных трубочек. Только скрутить их надо из той бумаги, которой вы отделываете игрушку. Сворачиваете ее в плотный рулончик, край проклеиваете клеем, затем нарезаете на отрезки нужной длины и приклеиваете в нужные места. Вместо трубочек могут быть деревянные палочки, бусины и т.д.
Кукольный книжный шкаф или полка из линеек
Можно сделать мебель для кукол своими руками из школьных деревянных линеек. Они хороши тем что уже обработаны, имеют одинаковую ширину и толщину. В магазине канцтоваров можно найти нужного размера — больше/меньше, шире/уже — по желанию. Например, для изготовления кукольного книжного шкафа нужны 6 линеек длиной 15 см.

Еще для работы понадобится лобзик. Если есть электрический — отлично, если нет — подойдет и ручной, так как работы не слишком много. Нужна также наждачная бумага с мелким зерном, клей (ПВА или столярный) и краски (акриловые или гуашь).
Из линеек нарезаем отрезки: 4 штуки по 6 см, один — 8 см. Края зашкуриваем до ровного состояния, снимаем также разметку и штрих-коды. Между двух линеек располагаем полки (которые по 6 см), сверху оставляем примерно такое же расстояние — под крышку (отрезок в 8 см). Стыки промазываем клеем ПВА или столярным, соединяем и стягиваем малярным скотчем, оставляем на сутки. Когда высохнет клей, приклеиваем самую последнюю деталь — крышку сверху. Собственно, сама полка готова, осталось ее раскрасить.

Для получения ровного и яркого цвета, конструкцию лучше покрыть белым, после высыхания уже красить нужным оттенком. Также сделанную своими руками кукольную мебель можно украсить в технике декупаж.
Мебель для кукол: фото-идеи
Сделать мебель для кукол своими руками можно из самых неожиданных материалов. Как использовать газеты и деревянные линейки вы уже видели. Но можно делать столы, стулья, кресла, диваны, кровати, полки, шкафы и т.д. из палочек для мороженного.

Начинать лучше с простого: стол и стулья для кукол из палочек для мороженного

Можно сделать кресла и диваны

Садовая скамейка или диван — в зависимости от отделки

Практически те же конструкции с мягкой обивкой

Сделать такое комод для кукол = это уже задача посложнее

Можно собрать и кроватку
Чем хорош этот материал, вы, наверное, уже поняли — он имеет закругленные обработанные края, одинаков по размерам и неплохо обработан. Если палочки кажутся слишком шероховатыми, доедите их до гладкости при помощи наждачной бумаги с мелким зерном.
Из прищепок получаются неплохие кресла и стулья. Их разбирают на половинки и соединяют при помощи столярного клея. Получаются фигурные изделия практически за несколько десятков минут.

Вот такой диванчик можно собрать из деревянных прищепок

Кресло, стол — тоже можно сделать из прищепок

Если немного добавить отверстий, получится ажурное изделие

Круглый стол для кукол из прищепок сделать совсем несложно

Оригинальные ножки из трех половинок от прищепок

Кресло-качалка для кукол

Игрушечные табуретки

Стулья с подлокотниками для кукольного домика
Почти всегда для изготовления кукольной мебели используют деревянные бельевые прищепки. Но никто не запрещает взять пластиковые. С ними работать точно также только сложность в том, что деревянные проще доработать, изменив толщину форму, и т.д. Если же изделие простое, доработки не требует, можно брать и пластмассовые. Они более разнообразны по форме и размерам, уже окрашены, так что возни с ними меньше.
С ростом мастерства можно перейти на более сложный материал — фанеру или древесину. Сложность в том, что вытачивание и вырезание миниатюрных деталей требует филигранной точности, усидчивости и отнимает массу времени. Зато можно сделать все что вы только пожелаете.













- Поделки для дома
