Любой участок обустроен калиткой исполненной из дерева, металла, пластика или при их комбинировании. Стиль входа обычно выдерживается в соответствии с оградой, но может быть и что-то оригинальное. Сделать калитку своими руками не так и сложно, во всяком случае, есть некоторые несложные варианты.

Устройство
Калитка состоит из опорных столбов и дверного полотна на раме или без, закрепленного на столбах при помощи петель (иногда называют навесы). Столбы могут быть кирпичные (каменные), деревянные или металлические. В кирпичные при кладке замуровывают небольшие куски толстого металла или металлического прута, к которым впоследствии приваривают петли.
Металлические столбы могут быть из круглой или профилированной трубы с толстыми стенками. Круглые трубы используют все реже: к ним сложнее приваривать, крепить что-либо. Профилированная труба при том же сечении (диагональ по сравнению с диаметром) и толщине стенки выдерживает большие ветровые нагрузки, к плоским граням проще приваривать или крепить при помощи саморезов, болтов. Поэтому именно её все чаще используют при устройстве калиток. Еще один вариант — к каркасу из профильной трубы приварить металлический уголок. В этом случае заполнение получится как бы в рамке.

Деревянные столбы обычно используют если забор деревянный. Чаще всего — это сосновый брус, обработанный защитными пропитками, предотвращающими (или по крайней мере замедляющими) разрушение древесины. Но бывают сочетание, когда столбы ставят металлические, а калитка и ограда при этом деревянные. Это потому что древесина в земле быстро сгнивает, даже после защитной обработки.
Немного о конструкции опорной рамы. Это может быть просто два столба вкопанных в землю — вариант подходит, если грунт не склонен к пучению (пески, супеси, плодородные, но не глинистые почвы).

Для пучинистых грунтов (глина, суглинки) желательно, чтобы столбы были соединены вверху и внизу. В таком случае вероятность перекоса калитки после зимы очень мала. Если вы не хотите делать порожек в проеме, нижнюю перемычку можно опустить ниже уровня земли (на штык–полтора). Ее надо будет тщательно покрыть антикоррозионным составом, огрунтовать, и покрасить в несколько слоев.
Каркас из профильной трубы
Самый, пожалуй, универсальный вариант калитки — с каркасом из профильной трубы или металлического уголка. На металлическое основание можно прикрепить любой материал: древесину, листовой металл, профнастил, металлический штакетник, плоский шифер, поликарбонат, сетку-рабицу, металлические пруты, кованные или гнутые элементы или сделать комбинацию из нескольких материалов. Вариантов очень много, а оформление подбирают в одном стиле с оградой.

Сваривать при этом профиль можно как узкой частью так и широкой. Сварив трубы широкой частью можно без особого труда закрепить замок как на обычной двери, не наваривая поверх каркаса дополнительные крепления.

Размеры и материалы
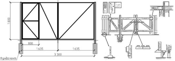
Для сплошной калитки в качестве столбов берут профилированную трубу сечением 60*60*3 мм. При этом стенки лучше выбрать потолще, так как это скажется на долговечности конструкции. Для рамы обычно используется прямоугольная труба 40*20*2,5 мм. Прочности этой трубы достаточно для средних ветровых нагрузок. При небольших ветровых нагрузках можно стенку взять 2 мм, но варить будет сложнее. Все что тоньше 2,5-3 мм сваривать надо в особом режиме и это далеко не просто. Если ветра более сильные, можно или увеличить толщину стенки, или использовать прокат большего сечения: 40*30 или 40*40, даже 40*60.

Высота калитки с верхней перекладиной обычно около двух метров, без перекладины — от 1,2 м. Низкие обычно делают во внутренних заборах, разграничивающих участок или в полупрозрачных невысоких оградах. Для глухих высоких заборов из профлиста, древесины, плоского шифера более характерна высота на уровне забора. Ширина калитки — минимальная 90 см, оптимальная 100-110 см. Эти размеры основаны из практических соображений, так как зимой или осенью проходить в верхней одежде в узкую калитку с шириной 70-75 см будет неудобно, а также будет трудно пронести при необходимости какие-то крупные вещи.
Ещё стоит поговорить о том, на какую глубину закапывать столбы. Стандартное решение — на 15-20 см ниже глубины промерзания. Исходя из этого значения и прибавив к нему высоту калитки, изготавливают опоры.

Лопатой или при помощи бура в земле делают яму, на дно которой засыпают ведро щебня средней фракции. Потом устанавливается столб, выставляется вертикально, засыпается щебнем (можно битым кирпичом) и заливается бетонным раствором. Когда раствор наберет не менее 50% прочности (через 7 дней при температуре +20°C), можно крепить каркас калитки.
Самостоятельное изготовление с фотоотчетом и пояснениями
Ограда — из профлиста с кирпичными столбами, соответственно и калитка из профлиста. В столбы ещё при строительстве замурованы металлические пластины, сваренные с трубой. Решено сделать калитку с дополнительными укосинами — чтобы профлист был жестче закреплён, а также чтобы усилить зону крепления замка. Замок — старый пока, возможна замена.

Каркас калитки варим при помощи инверторного сварочного аппарата из профильной трубы 40*20*3 мм. Ставить будем»по месту», привариваясь к закладным. Отрезаем заготовки:
- две поперечины длиной от одного столбы до другого (получилось 108 см),
- две стойки — высотой 185 см.
Варим раму
Поперечины не привариваем, а только «прихватываем» к закладным пластинам — чтобы держались. Буквально по две точки сварки на место крепления. Перед сваркой второй стороны проверяем горизонтальность перекладины. Кладем строительный уровень, корректируем положение, потом прихватываем. Итак, получится, что в проеме две горизонтальные перемычки.

К установленным поперечинам привариваем вертикальные части. В месте соединения с перемычками угол строго 90°. Проверяем в процессе соединения, при необходимости корректируем. Шов должен быть прочным, поэтому обвариваем со всех сторон, по периметру трубы.

В результате получилась рама прихваченная к столбам. Еще раз проверяем углы, иначе потом может перекосить, калитка перестанет закрываться/открываться.
Ставим петли
Далее самый ответственный момент — надо приваривать петли. Взяли стандартные металлические петли для распашных ворот, которых полно в любом строительном магазине и на рынке. Они должны быть установлены строго вертикально, да еще обе на одной оси. Иначе калитка будет открываться с трудом, а это в конечном итоге приведет к ее поломке.

Первой привариваем нижнюю петлю, перепроверив её вертикальность уровнем. Вторую устанавливаем на той же оси. Сначала прихватываем к закладной, проверяем и лишь потом, если всё совпало, тщательно провариваем шов. Если всё рассчитано правильно, петля прилегает к трубе каркаса, так что приварить труда не составит.

Когда петли установлены, убираем «прихватки», которые держат калитку. Она волшебным образом теперь открывается/закрывается. Далее дело за малым — приварить укосины, а для этого отрезаем куски трубы одинаковой длины, прикладываем к предполагаемому месту установки, отмечаем мелом как надо срезать. Берём болгарку с режущим диском по металлу, отрезаем, проверяем, если надо, дорабатываем (болгаркой или напильником — в зависимости от величины «косяка»). Когда укосина «стала», привариваем ее.

Далее довариваем усиление под замок на калитку. Для монтажа старого металлического замка вверху понадобилось приварить кусок уголка, иначе не получалось его закрепить.

Последние сварные работы — надо закрыть открытые срезы труб, которые направлены вверх и в стороны. Если их не закрыть, в них будут попадать дождевая вода и снег, трубы начнут ржаветь изнутри, что ускорит смерть каркаса. Сварка на этом этапе не обязательна, можно заделать силиконом или найти пластиковые крышки подходящего размера.
Финишные работы
Завершаем работы с металлом — шлифовкой, грунтовкой и покраской каркаса. В завершении крепим к каркасу профлист, а в данном случае оно ничем не отличается от монтажа профлиста на забор.
На УШМ (болгарку) ставим шлифовальный круг по металлу, зачищаем все места сварки, убирая ржавчину и т. д. Кстати, делать все это удобнее когда калитка стоит на месте.


Чтобы каркас калитки долго не облезал, обработайте его грунтовкой и покрасьте в нужный цвет. Далее крепим профлист предварительно отрезав по размеру.

Необязательно, но вероятно что придется где-то подрезать. Поэтому для начала отрезанный лист крепим буквально на четыре самореза — по углам, наносим отметки — где что подрезать, снимаем, отрезаем, снова примеряем. Когда добились нормальной работы, можно крепить.
Крепить можно как саморезами так и заклепками, соответствующие цвета не трудно будет подобрать.

Деревянная калитка для дачи
Заборы на дачах редко представляют собой неприступную преграду. Обычно это не слишком высокие деревянные заборчики. Для такой ограды имеет смысл сделать калитку из дерева. Есть совсем простая, без затей. Нужны будут только сухие доски (при условии, что столбы уже есть).
Если нет деревообрабатывающих станков (рейсмуса, фрезера), проще купить обрезную доску нужных параметров. Ширина/толщина досок произвольная, как и расстояния между планками. Чаще всего используют сосновую доску шириной 5-10 см и толщиной около 2 см, расстояние между планками — 2-6 см. Можно и больше, и меньше — зависит от желаемой степени «прозрачности».

Доски желательно иметь сухие, иначе впоследствии они могут изогнуться винтом или по дуге. Чтобы древесина дольше не разрушалась, ее необходимо обработать защитными пропитками. Сейчас есть составы, которые защищают даже древесину, которая лежит на земле (защитные пропитки для дерева, находящегося в непосредственном контакте с землей). Но некоторые из них придают древесине посторонний оттенок (чаще всего зеленоватый, оливковый). Если калитку собираетесь красить, это не страшно. Если же собрались использовать светлый лак, обратите внимание на этот момент.
Простая садовая калитка
Это самый простой вариант который может сделать не плотник, а обычный человек. Если вы умеете пилить, держать в руках молоток, забивать гвозди, все получится. Ничего сложного делать не придется.
Берут две планки или два бруса (параметры зависят от веса калитки). По длине они равны ширине будущей калитки. Бруски укладывают поперек. Расстояние между ними — немного меньше высоты калитки. Имеет смысл расположить их на том же расстоянии, как и тетивы на прилегающем заборе (как на фото выше). Тогда калитка будет смотреться частью ограды.

Выберите ровную поверхность, положите бруски и измерьте расстояние от углов поперечин по диагонали. Оно должно быть одинаковым. Это необходимо сделать иначе калитка получится кривой.

Обработанные и высохшие штакетины выкладывают с заданным расстоянием на поперечины. Чтобы выдержать расстояния было проще, можно использовать обрезки одинаковой длины, проложив их между досками (можно и спичечный коробок, если вас устраивают его размеры). Берем гвозди (два на планку вверху и два внизу) и крепим доски к каждой поперечине.
После того как все планки прибиты, переворачиваем полотно калитки, примеряем укосину, очерчиваем линии, по которой надо укосину обрезать. Ножовкой отпиливаем лишнее, ставим на место, крепим — по два-три гвоздя с обоих сторон. Теперь крепим каждую доску к укосу. Это придает калитке дополнительную жесткость.

Петли выбираем металлические, можно — амбарные. Они есть небольших размеров, как раз для дачных калиток. При желании, крепят их к лицевой части калитки — они придают некую изюминку. С таким же успехом можно их закрепить и с тыльной стороны.
Делаем калитку из досок: правильная конструкция
Выше описан простой садово-дачный вариант, но есть конструкция посложнее и понадежнее. Тут потребуются минимальные плотницкие навыки, так как собирается она на соединение шип/паз. Эта деревянная калитка состоит из двух реек обвязки большей толщины, двух перекладин (верхней и нижней) и подкоса. Толщина верхних перекладин и штакетин (вертикальных планок) одинаковая, а толщина реек обвязки в три раза больше (толще можно, тоньше — нет). Например, штакетины, перекладины и укос имеют толщину 20 мм, рейки обвязки — 60 мм.

В рейках обвязки вырезается паз, на концах перекладин — шип. Соединение промазывается столярным клеем, зажимается в тиски. Укос можно установить также — на шип и паз, но он получится сложной формы. Поэтому чаще его просто крепят на гвозди — так проще. После того как рама собрана, прибивают штакетины. Их можно прибивать со стороны двора или со стороны улицы. Вместо гвоздей можно использовать болтовые соединения, в этом случае крепеж служит еще и украшением. Имеет смысл поставить нержавеющие или бронзовые заклепки.
Фото красивых калиток
Сделать калитку не обычную, а красивую — это не так уж и сложно. И далеко не всегда для этого требуются дорогие материалы. Что всегда необходимо — это фантазия. Тогда даже велосипед, лопата, сучок или кирка — материал для эксклюзивного дизайна.












