На территории РФ для сбора твёрдых коммунальных отходов используют мусорные контейнеры различающиеся размером и объёмом. Кроме этого, они отличаются конфигурацией, цветом и материалом изготовления. Существуют баки с дополнительными приспособлениями для удобства транспортировки. Каждый тип контейнера для мусора используют согласно нормам, контролируемых СЭС.

Что такое контейнеры
По конструкции контейнер представляет собой ёмкость определённой вместительности, куда складывают на временное хранение твёрдые бытовые отходы. Они предотвращают рассыпание отходов по территории, разноса их ветром. Уменьшается распространение по воздуху неприятных запахов. Контейнер ограничивает доступ к ТБО животным и частично птицам, насекомым, которые являются разносчиками инфекции. Контролирует процесс хранения специальная служба СЭС.
Контейнеры ТБО и ТКО
В чём разница между ними. Дело в том, что до 2014 года утилизируемый мусор именовался твёрдыми бытовыми отходами (ТБО). По новым правилам законодательства РФ введено новое обозначение – ТКО. Расшифровывается аббревиатура как твёрдые коммунальные отходы.
Окончательно закон вступил в силу с 2019 года. Теперь во всех официальных документах бытовой мусор обозначен ТКО. Для обычных граждан изменение аббревиатуры ничего не значит. К твёрдым коммунальным отходам по-прежнему относят бытовой мусор, который делится на два вида:
- биологический;
- небиологический.
Изменения коснулись только компаний, занимающихся утилизацией. В своей документации они обязаны использовать новое обозначение, а также отображать аббревиатуру в коммунальных платежах.
Бункеры для ТКО остались те же самые, что и под ТБО. Сохранились требования и стандарты. Изменения коснулись только аббревиатуры.
Виды контейнеров
Правительство РФ запустило реформы, в рамках которых предусмотрен раздельный сбор ТКО. Ассортимент выпускаемых контейнеров значительно расширился. Условно все мусоросборники делят на два вида по типу установки:

Наземные виды контейнеров для мусора различаются конструкцией. Они бывают:
- стандартные в виде ёмкости без крышки, колёс, ручек;
- с ручками для транспортировки (обычно баки маленького объёма);
- с крышкой, которая предотвращает распространение неприятных запахов, намокание отходов во время дождя, ограничивает доступ животных и птиц;
- с колёсами, обеспечивающими простоту передвижения контейнера по территории;
- комбинированные модели – с колёсами и крышкой.
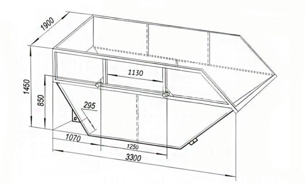
Баки, имеющие увеличенный объём мусорного бункера, а также изменённую конструкцию, называют бункерами-накопителями. Они выше обычных мусоросборников, но имеют один заниженный борт. Предназначен бункер-накопитель ТБО для ручного заполнения крупногабаритным мусором.

В рамках соблюдения закона о раздельном сборе ТКО производители выпускают контейнера двух видов:
По нормам СНиП мусорные контейнеры для органики обязательно оснащены крышкой. Наличие колёс не попадает под технические требования, но востребовано из соображения удобства передвижения баков. Современные мусоросборники на лицевой стенке оснащены умным трекером RFID. В метке прошита информация о контейнере: месторасположения, принадлежность обслуживающей организации, время выгрузки. Трекер позволяет выполнять GPS-мониторинг.

Разницы между пластмассовыми и стальными баками нет. Они все соответствуют требованию закона о мусорных контейнерах: СанПиН 42-128-4690-88 и 2.1.7.3550-19, ГОСТ Р 56195-2014, ОСТ 22-1643-85. Обслуживающие организации сами ориентируются при приобретении модели с учётом потребности и условий бюджета. Вместимость небольших евро мусоросборников от 120 до 360 л, а объём стандартного контейнера для мусора составляет от 770 до 1100 л.
Изготовлены баки аналогично из металла или пластика. По нормам СанПиН на одной площадке устанавливают до 5 баков для раздельного способа сбора твёрдого мусора и 1 ёмкость под органику.

Цветовая окраска разработана для раздельного сбора ТБО. На территории РФ действуют две схемы.
По европейским стандартам цвет бака обозначает, под какой тип складируемого мусора он предназначен:
- зелёный – все виды стекла;
- синий – бумажная продукция;
- оранжевый – все виды пластмассы;
- серый – органика;
- жёлтый – металлолом;
- красный – электронные изделия.

Вторая схема упрощённая, чаще всего применяется в регионах РФ. Серые ящики используют под органику, а оранжевые или синие для непищевых отходов.
В мелких населённых пунктах встречаются мусоросборники и контейнеры по ГОСТ 12917-70, то есть старого образца, ржавые или окрашенные красно-коричневым грунтом, иногда зелёной эмалью. Отходы люди часто сбрасывают все вместе, органические и неорганические, что нарушает требование установленных норм.
Требования к контейнерам
Согласно техническим требованиям, производитель использует рабочий чертёж мусорного контейнера при его изготовлении. Нарушение его недопустимо. Из большого списка требований стоит рассмотреть основные пункты:
- баки должны соответствовать климатическому исполнению УХЛ1 согласно ГОСТ 15150-69, иметь усиленный верхний край и стенки для безопасной выгрузки погрузчиком;
- по предъявляемым требованиям к контейнерам ТБО должны быть водонепроницаемыми на всю высоту баки под органику и на 1/3 высоты – ёмкости для непищевых отходов;
- недопустимо повреждение стенок, наличие перекосов по диагонали больше 8 мм.
Покраска контейнера должна соответствовать нормам ГОСТ, если есть крышка, то в закрытом состоянии допускается зазор между корпусом 4 мм.
Размеры и объём контейнеров
С 01. 01. 1986 года ГОСТ 12917-70 отменён и сейчас действует ОСТ 22-1643-85, по которому стандартные всем знакомые мусоросборники выпускают сейчас. Но вот технические характеристики ГОСТ 12917-70:
- размер верхней части – 900х900 мм;
- размер днища – 700х700 мм;
- общая высота мусорного контейнера – 1100 мм;
- материал изготовления – сталь толщиной 2 мм согласно ГОСТ 19904-90.

Ёмкость для мусора по ГОСТ 12917-70
Характеристики присущи открытому мусорному контейнеру, объём в кубах которого составляет 0,75 м. куб.
Различающиеся объёмом мусорные баки на улице встречаются таких типов:


Размеры мусорных баков, которые подбирают в зависимости от их предназначения и типа ТКО. Самые распространённые габариты: металлических моделей – 1270х850х1170 мм, пластиковых – 530х530х560 мм.
Важно учесть, что размеры мусорных контейнеров у разных производителей могут отличаться. Иногда отходят от стандартов, подгоняя габариты тары под удобный способ транспортировки бака, примерное количество ТКО, необходимую занимаемую площадь.
