Если вы предпочитаете натуральные продукты, вместо суррогатов, обработанных жидким дымом, которые в основном встречаются на прилавках, то домашняя коптильня холодного копчения, сделанная своими руками — то, что вам нужно. В статье рассмотрим основные вопросы, связанные с холодным копчением: принцип работы, преимущества, виды конструкций.

Принцип работы коптильни
Главное условие в процессе копчения – это постоянная и размеренная подача низкотемпературного дыма в камеру с продуктами. Дым, получаемый от тления опилок или щепы, подаётся из топки в коптильную камеру, по трубе или тоннелю длиной не менее 2 метров. Проходя по трубе, дым остывает до оптимальной температуры и попадает в камеру копчения с развешенными продуктами.
В результате длительного воздействия дыма на подготовленное сырьё, оно обезвоживается, пропитывается ароматическими компонентами и окрашивается в золотистый цвет. Вкус яркий с дымным отпечатком.
Важно на протяжении всего времени копчения поддерживать одинаковую температуру и плотность дыма.

Автоматическая коптильня с использованием дымогенератора требует минимальное участие человека. Достаточно заложить в отведённую ёмкость опилки и включить устройство.
Что лучше: холодное или горячее копчение
Помимо холодного способа, закоптить мясо или рыбу, есть ещё и горячий. Различие между ними значительное, так как меняется не только способ готовки, но и вкус конечного продукта. Главные отличия:
- Время приготовления. При горячем копчении продукты готовятся в течение получаса или часа, при холодном – от суток.
- Температурный режим. Во время холодной обработки, температура, обычно, не превышает более 25 градусов. При горячей – достигает 120 градусов.
- Срок годности. При горячем копчении продукты готовятся при высоких температурах, поэтому одновременно с копчением они запекаются. Из-за этого срок годности уменьшается до месяца. Срок годности холоднокопчёных – до года.
- Полезные вещества. При холодном копчении осуществляется сушка изделий, с сохранением полезных веществ – витаминов, аминокислот.
- Консистенция. Во время холодной процедуры, изделия делаются плотными и не ломаются на кусочки. Большая температура при горячем копчении придаёт мясному изделию мягкость и сочность.
- Оборудование. Коптилки горячего копчения просты и миниатюрны.
Общее, что объединяет оба способа – это канцерогены, переходящие из дыма в продукт. Но их количество можно минимизировать, используя хорошую щепу и правильное построение коптильни.
Возьмём, к примеру, рыбу. С учётом метода копчения, изделия получают специфический вкус и аромат. Во время холодной обработки рыба получает:
- глубокий дымный аромат;
- сухую мякоть;
- золотистую шкурку;
- срок годности 1–2 месяца.

После горячего копчения рыба становится мягкой, с более нежным вкусом и золотистым оттенком. Но хранить её рекомендуется не более недели.
Плюсы и минусы холодного копчения
Преимущества холодного процесса копчения в основном касаются готового продукта. Плюсы способа:
- Длительный срок хранения.
- Сохранение полезных веществ.
- Меньше впитывание вредных веществ, чем при горячем способе копчения.
Минусы:
- Сложность в организации процесса.
- Длительность готовки.
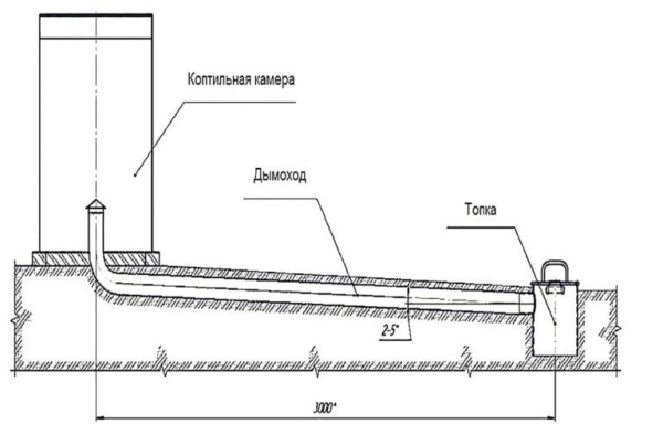
Устройство коптильни и чертёж
Устройство коптильни холодного копчения обладает достаточно требовательной конструкцией. Дыму, прежде чем он попадёт в коптильную камеру, необходимо остыть, а также очиститься от вредных смол и копоти. Стандартная коптилка состоит из трёх основных частей:
- Топка. Она может быть сделана, из металла, либо из кирпича. Иметь ёмкость для сбора золы, а также регулируемую створку поступающего воздуха для контроля процесса тления.
- Дымоход. Длина трубы должна быть не менее 2 метров и не более 7 метров. Если не соблюдать это правило, то будут проблемы с тягой. Лучшего всего подойдут трубы с диаметром более 150 мм.
- Коптильная камера. Благодаря низкой температуре, в качестве коптильной ёмкости может выступать любой материал, в частности, дерево, кирпич или даже пластик. Поэтому для сооружения домашней коптилки подойдут готовые изделия достаточной ёмкости.

Чертёж простой коптилки холодного копчения
Довольно часто в качестве камер для копчения используют бочки на 200 литров, холодильники или газовые баллоны. Учитывая небольшую температуру в камере, выбор материала широк. Как основу для самодельной коптилки можно взять деревянный короб, а внешняя обшивка может быть из фанеры, оцинковки и даже плёнки.
Выбор места
Учитывая принцип работы коптилки, в качестве места для её установки, лучше всего подойдёт участок на даче или около загородного дома. Коптилку вполне можно соорудить в гараже, если дым от копчения никому мешать не будет. Для изготовления простой коптилки своими руками в домашних условиях не нужно много материала.

Виды конструкций
Коптилки, основанные на холодном методе копчения, можно разделить по конструкции на два основных вида. Разделение основано на принципе получения дыма:
Самые популярные – это конструкции, основанные на использовании дров. В коптилках с дымогенератором, дым получают в результате тления щепы подающийся в камеру с помощью компрессора.

Электростатические коптилки могут быть по конструкции как дровяными, так и с дымогенератором, но имеющие высоковольтное (ВВ) устройство. Создаваемая ВВ генератором разность потенциалов, значительно сокращает время готовки при холодном копчении.
Как сделать коптилку
Самостоятельно изготовить коптильню у себя дома не так и сложно. Вопрос в том, что требуется получить в результате. Если вы хотите заниматься копчением профессионально или сооружение должно радовать своим видом, то лучше построить капитальную коптилку из кирпича. Когда всё равно, как она выглядит, лишь бы выполняла свою функцию, то можно использовать любые подходящие материалы.
Чтобы дым смог пройти от топки или печи по дымоходу в камеру копчения, нужна хорошая тяга. Поэтому топка должна быть как можно ниже относительно камеры копчения. Путь от топки до камеры должен быть герметичен.
Яму для топки выкапывают глубиной в 2–3 штыка обычной лопаты. Днище заливается бетоном или укладывается листом из металла для получения плоскости. Чтобы коптильня использовалась как можно дольше внутренние стенки лучше обложить огнеупорным кирпичом. Вместо цемента для кладки кирпича используют песчано-глиняную смесь. Её можно приобрести в магазине или сделать самостоятельно. Для этого песок смешивается с глиной в пропорции 50 на 50.

Для дымохода можно использовать готовую трубу, либо вырыть траншею, накрыть её и засыпать землёй. Дымоход не должен быть узким и слишком длинным, иначе тяга исчезнет. Для лучшего прохождения дыма, трубу или траншею делают наклонно, с подъёмом в сторону коптилки.

Как камеру, можно использовать любую ёмкость достаточной прочности и размера. Лучшими вариантами в этом случае, будут коптилка из бочки или из холодильника. При отсутствии готовой ёмкости, сделать коптильную камеру можно из дерева, листового железа или пластика.
Коптильня из бочки
Использование двухсотлитровой бочки будет самым простым вариантом. Для этого понадобиться:
- Бочка.
- Сетка из металла.
- Прочные решётки или прутья.
- Элементы крепежа.
- Мешковина.

Вначале сооружаем печь и дымоход. Как это сделать, уже написано выше. В дне бочки делается отверстие для дымохода. Верхняя часть удаляется. Отступив от верха на 20 см, делаем крепёж для прутьев или решётки под мясные и рыбные изделия.
Плотная мешковина используется как крышка, для удержания дыма, и в то же время выводит его лишний объём. Чтобы мешковина не падала в бочку, лучше положить её на металлическую сетку.
Отличным решением будет коптилка из деревянной бочки, хотя этот вариант несколько дороже. Сборка аналогичная первому способу.
Старый холодильник
Этот вариант является практически таким же простым и экономичным, как и в случае с металлической бочкой. Однако он удобнее, так как есть доступ в камеру через дверь.
Для увеличения ёмкости, с холодильника снимаются все пластиковые детали, а также компрессор и реле. Все щели закрываются любой клеящей лентой. Снизу или сбоку делается отверстие для дымохода. Верх вырезается и накрывается мешковиной, либо монтируется вытяжная труба.

Аналогично поступают при строительстве коптильной камеры из металлического шкафа, ящика или из корпуса стиральной машины.
Коптильня холодного копчения из кирпича
Перед началом строительных работ сделайте схему коптилки, а ещё лучше чертёж с размерами. Это позволит избежать ошибок в работе, подготовить смету и рассчитать количество кирпича и других материалов.
Необходимые инструменты и материалы:
- Кирпич красный и шамотный.
- Цемент.
- Глина и песок.
- Металлические решётки.
- Колосник.
- Дверки.
- Заслонка (шибер).
- Крышка из металла.
- Молоток, шпатель, уровень, мастерок, порядовку, отвес.
Начинается строительство с заливки фундамента. Но если есть возможность, лучше взять готовую бетонную плиту — это сократит время строительства.

Топку следует выложить шамотным кирпичом, так как он более стоек к высоким температурам, но при его отсутствии вполне подойдёт и обычный красный. Лучше всего внешнюю часть топки сделать из красного кирпича, а внутреннюю – из шамотного. Для кладки кирпича внутренней части печи желательно использовать песчано-глиняную смесь.
Кладка делаться в полкирпича, но можно сложить и на ребро (ложок), если кирпич полнотелый. Конструкция коптильни получится менее прочной, но учитывая небольшие размеры, её будет достаточно.
Дым можно получать двумя путями – напрямую из топки, или от тления опилок в камере над топкой. Второй вариант предпочтительней, так как дым будет иметь меньшую температуру и понадобится меньшей длины дымоход. Дымоход должен иметь достаточную длину, чтобы дым успел остыть. При сечении туннеля более 25х25 см, уклон с подъёмом в сторону коптилки можно не делать. Коптильную камеру делаем выше печки для лучшей тяги.
Выкладывая стенки камеры, через пару рядов кирпича вставляете скобы или упоры, на которые будете укладывать решётки с продуктами.
Если под камерой копчения сделать дополнительную топку, отделённую от печи железной плитой, то получим универсальное устройство горячего и холодного копчения. На плиту насыпаются опилки или щепа, их нагревание будет давать горячий дым в зоне копчения. В этом случае нужно предусмотреть установку поддона для сбора жира. Его попадание на плиту с опилками даст неприятный запах и горечь в копчёностях.
Как правильно подготовить продукты
Поскольку при копчении продукты не подвергаются воздействию высокой температуры, перед копчением их необходимо подготовить. Сырые полуфабрикаты моются и при необходимости делятся на нужные размеры. Далее сырьё засаливается методом мокрого или сухого посола. Важно соблюдать количество использованной соли, так как после окончания процесса копчения вода испарится, а соль останется в продукте.
В Советском Союзе ГОСТ предусматривал норму соли 2,3% на 1 кг мяса, что составляет 23 грамма. В реальности на 1 килограмм сырья берётся 20–50 грамм соли, в зависимости какой продукт готовят.
Если вы собираетесь долго хранить полученный продукт, то при засолке обязательно включите в состав нитритную соль, при холодном копчении она необходима. В ней содержится всего 0,6% нитрита натрия, что совершенно безопасно. Но она защитит от ботулизма, и кроме того усилит окраску мясных продуктов.
Можно уменьшить концентрацию нитритной соли, размешав её пополам с обычной.

Время посола варьируется от полусуток при комнатной температуре, до 2–3 дней в холодильнике. Для придания продукции аромата, можно добавить по вкусу специи.
Если продукт готовился в крутом растворе соли, например, рыба, то её необходимо вымочить. Считается, что если на засолку ушло 2–3 дня, то вымачивать нужно на протяжении 2–3 часов, и время от времени менять воду.
После засолки продукты необходимо подсушить. За это время влага на поверхности заготовок высыхает, и дым сможет проникнуть вглубь.
Как коптить
После подготовки мяса или рыбы можно приступать к копчению. Температура в камере с дымом должна быть около 25 ˚С. Это для идеального копчения, но в некоторых рецептах допускается повышение температуры до 35 ˚С. Дым нужного качества получают при тлении опилок, стружки или щепок. Самая распространённая щепа для копчения берётся от фруктовых деревьев, а также ольхи, бука, берёзы и т. п. Нельзя использовать древесину хвойных пород – ель, сосну, из-за большого содержания смол.

Поскольку температура приготовления низкая, то процесс копчения длится от 1 до 7 дней. Продукты, развешенные в камере холодного копчения, постепенно теряют влагу и пропитываются коптильными веществами, которые глубоко проникают в волокна. В результате мы получаем деликатес, который обезвожен, имеет плотную мякоть и дымный аромат.
Для проявления более выраженного приятного вкуса и аромата, нужно выдержать полученный деликатес ещё несколько дней в холоде. Хранить копчёности можно от месяца до 1 года.
Дерево для копчения
Немаловажным является также вопрос подбора дров. Следует отнестись к этому внимательно, так как не каждый вид дров подойдёт для холодного копчения мясных изделий. В целом, наиболее популярными являются:
| груша | бук |
| яблоня | берёза |
| орех | осина |
| слива | тополь |
| вишня | липа |
| абрикос | дуб |
| черёмуха | ольха |
Обратите внимание, что древесный материал для коптильни должен быть сухим. Присутствие грибка делает древесину непригодной для использования. Также непригодны хвойные породы из-за большого содержания смол. Смола способствует тому, что, цвет мяса станет тёмным, а вкус – горьким.
Для придания оригинального цвета или необычного вкуса, хвойные породы иногда используются, например, можжевельник. Однако здесь надо быть хорошим специалистом, иначе есть риск испортить продукт.
Коптилки от производителей
Если нет времени на самостоятельное изготовление коптилки, то есть возможность подобрать её под ваши потребности в магазине. Доступны варианты с ускоренным процессом копчения, с мини-размерами, и даже для копчения в квартире.
Для квартиры
Устройство коптильни холодного способа, из-за размеров, не подразумевает её использование в доме. Однако есть мини-варианты для копчения продуктов в квартире на кухне.
В магазине нужно искать мультиварки с функцией копчения. Такие модели являются, по сути, универсальными — могут работать в режиме холодного копчения, горячего и комбинированного.
У мультиварок с такой функцией, внутри установлен нагревательный элемент. На него крепится ёмкость для опилок или щепы. При нагреве элемента опилки тлеют с выделением дыма. Продукты окуриваются дымом, отчего коптятся.

Температура в мультиварке около 30 градусов, поэтому процесс длится долго. Однако учитывая, что внутри прибора давление выше, времени, необходимого для приготовления продуктов, тратится меньше.
В процессе холодного копчения через крышку мультиварки может выходить некоторое количество дыма, но нормально работающая вентиляция легко с этим справится.
Лучшими среди мультиварок с функцией копчения является модели:
- Polaris PMC 0529ADS.
- Vitesse VS-3005.
- Redmond RMC-M110.

Polaris PMC 0529ADS

Мультиварка с функцией холодного и горячего копчения Vitesse VS-3005

Redmond RMC-M110
С дымогенератором
Ещё один способ упростить процесс копчения — приобрести дымогенератор (ДГ). Это аппарат для получения низкотемпературного или горячего дыма. Принцип его действия прост. В дымогенератор закладывается щепа и поджигается. Компрессор подаёт воздух в эжектор. В эжекторе поток воздуха подхватывает дым от тлеющих опилок, смешивается с ним и остужает, после чего подаётся в камеру копчения.
Тление загруженной щепы идёт медленно за счёт небольшой тяги, создающейся компрессором. Длительность копчения одной заправки зависит от количества засыпанной щепы, потока воздуха от компрессора, а также поступающего через поддувало.

Классический дымогенератор состоит из трёх основных частей:

Чтобы улучшить характеристики ДГ, его комплект может быть дополнен дефлегматором (устройство для быстрого охлаждения дыма) и ёмкостью для сбора конденсата. Некоторые модели ДГ оснащены датчиком температуры дыма в камере копчения, что делает удобным контроль температуры.

О том, как изготовить дымогенератор самостоятельно, читайте в нашей статье.
Электростатическая коптильня
Электростатическое копчение, как правило, применяется в промышленности. Принцип его работы основан на работе электрических полей. Дым под действием электростатического заряда быстрее и глубже проникает в продукты.
В коптилке создаётся высоковольтное электростатическое поле. Отрицательный электрод (катод) подключён к решётке с продуктами, а положительный (анод) к корпусу камеры. Дым имеет ионизированный состав. Отрицательно заряженные ионы притягиваются к аноду, осаждаясь на корпусе. Положительно заряженные ионы притягиваются к катоду, с расположенными на нём продуктами.

Этот метод позволяет сократить время копчения с нескольких суток до часов, сохраняя вкус.
Коптилку на электростатическом методе вполне можно собрать своими руками. Однако увеличивается сложность установки, необходимостью получения высокого напряжения 10–20 тысяч вольт. Но такой генератор можно приобрести или изготовить самостоятельно.
Отзывы
Положительные отзывы, оставленные покупателями, говорят о действительно полезном приобретении. Значительно упростилась процедура холодного копчения и свелось к минимуму участие в процессе человека.
Вот один из отзывов:
Андрей, г. Курск
Наслышан о копчении в домашних условиях, поэтому решил попробовать. Необходима была небольшая коптильня холодного копчения с дымогенератором. Такую нашёл в вашем онлайн-магазине, благодарю за быструю доставку, качество вопросов не вызывает.
Я решил закоптить рыбу. Честно не рассчитывал, что получиться с первой попытки. Но мои ожидания не оправдались. Получилось вкусное, ароматное мясо с приятным дымным запахом. Близкие оценили, а я остался доволен тем, что получилось.
