Разное
Современные водопроводы редко делают из металла. Появились у него достойные конкуренты — полимеры, которые постепенно вытесняют его во многих областях. Один из таких материалов — полиэтилен низкого давления. Из
Одна из важнейших систем жизнеобеспечения в нашем довольно неласковом климате — отопление. Есть несколько различных способов сделать систему подогрева. И одни из них — паровое отопление. Система эффективная,
Раздумывая, какую систему обогрева дома или дачи выбрать, часто задумываются об использовании электроэнергии. Плюс этого вида энергоносителя в его экологичности, «чистоте» и в высокой надежности электрообогревателей. Минус —
Современные газовые котлы хороши тем, что при нормальных условиях они работают полностью автономно. Для стабильной работы им необходимо определенное давление газа и постоянное электропитание. С этой задачей справится
Нормально работающее отопление зимой — жизненная необходимость. Без подогрева в нашем климате не выжить. Но периодически ранее нормально работающая система начинает сбоить — не греются или плохо греются
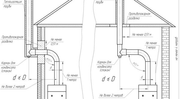
При установке газовых котлов необходимо строго соблюдать нормы. Также строго по нормативам надо монтировать дымоход для газового котла. Хоть температура дымовых газов невысокая и не имеет окраски, вреда
Давно уже горячая вода в кранах перестала быть роскошью. Сегодня это — одно из обязательных требований нормальной жизни. Одна из возможностей организации горячего водоснабжения частного дома — установка
В последние десятилетия понятие «хороший ремонт» очень быстро меняется. Например, некоторое время тому назад очень популярны были душевые кабины. Теперь набирают популярность встроенные душевые без поддона. Для их
Чтобы выбрать котел для отопления частного дома необходимо учесть много факторов. Для этого необходимо иметь информацию об основных особенностях каждого вида котлов, их достоинствах и недостатках. Как выбирать
Рост цен на энергоносители заставляет задуматься о возможности обеспечить себя ими самостоятельно. Один из вариантов — биогазовая установка. С ее помощью из навоза, помета и растительных остатков получают биогаз,
